

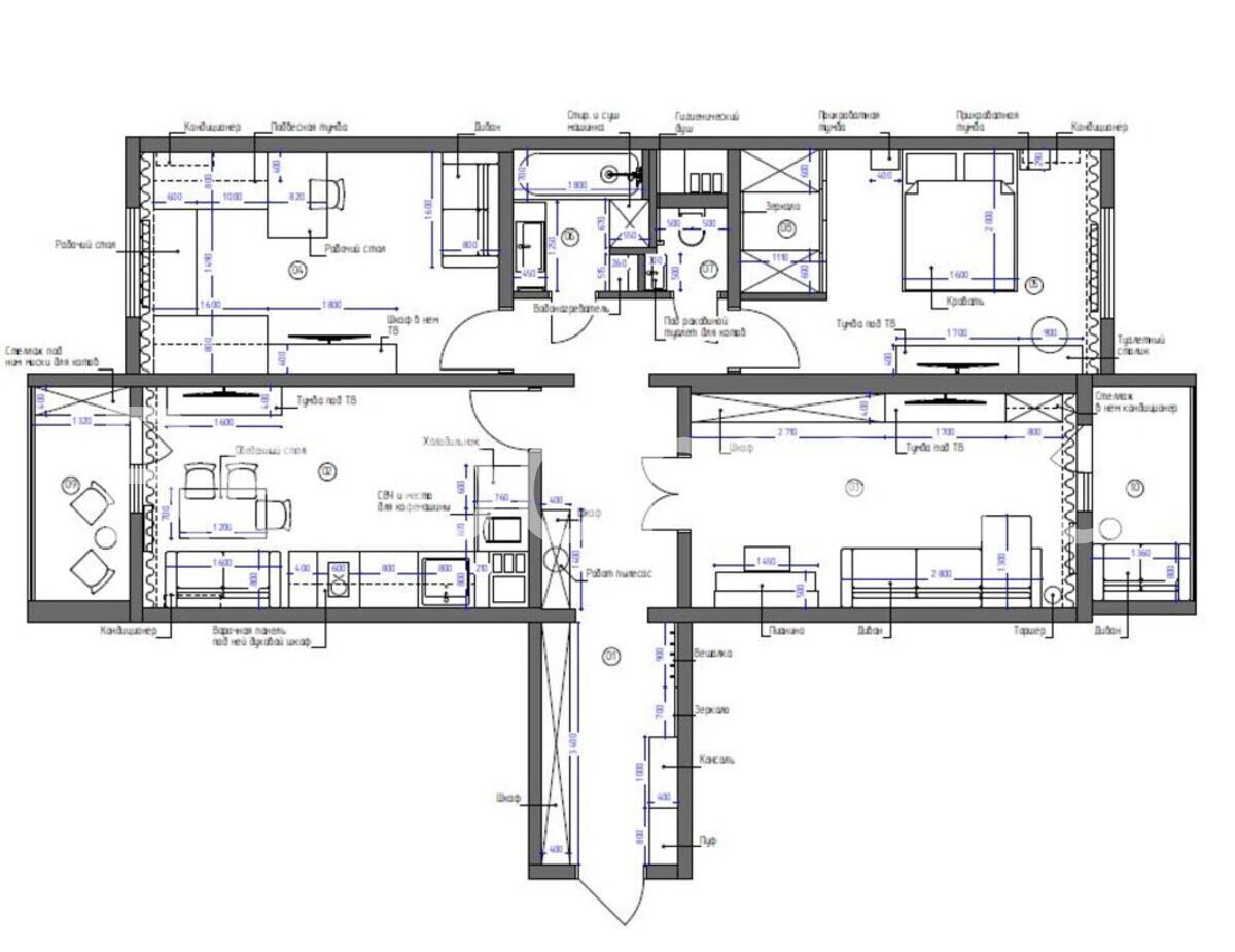
Дизайн-проект трехкомнатной квартиры выполнен в стиле модернизм. Интересные архитектурные формы, разнообразные текстуры и современные элементы декора смотрятся необычайно гармонично и целостно. Разноплановое освещение придает пространству индивидуальный характер, а контрастная цветовая гамма делает его стильным и уникальным.
Дизайн-проект трехкомнатной квартиры выполнен в стиле модернизм. Интересные архитектурные формы, разнообразные текстуры и современные элементы декора смотрятся необычайно гармонично и целостно. Разноплановое освещение придает пространству индивидуальный характер, а контрастная цветовая гамма делает его стильным и уникальным.
