

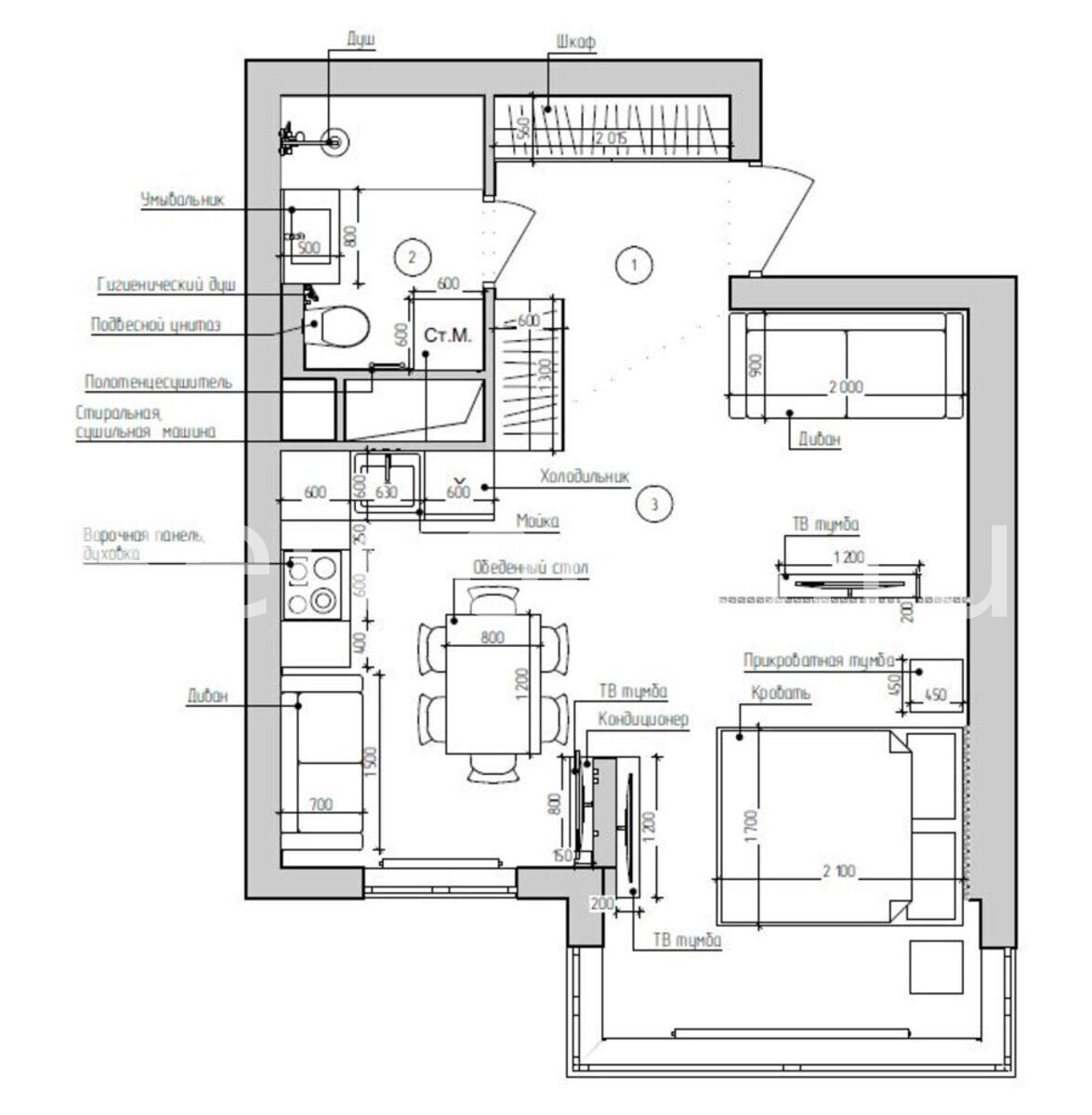
Дизайн-проект однокомнатной квартиры выполнен в стиле модернизм. Четкая геометрия пространства, интересные архитектурные формы, обилие разнообразных текстур, современные элементы декора в интерьере смотрятся необычайно гармонично и целостно. Разноплановое освещение придает пространству индивидуальный характер, а гармоничное сочетание цветов делает пространство стильным и уникальным.
Дизайн-проект однокомнатной квартиры выполнен в стиле модернизм. Четкая геометрия пространства, интересные архитектурные формы, обилие разнообразных текстур, современные элементы декора в интерьере смотрятся необычайно гармонично и целостно. Разноплановое освещение придает пространству индивидуальный характер, а гармоничное сочетание цветов делает пространство стильным и уникальным.
