

Дизайн-проект трехкомнатной квартиры выполнен в современном стиле. Интересные дизайнерские решения, современный декор, акцентные элементы - все это в данном интерьере смотрится необычайно гармонично и целостно. Разноплановое освещение придает пространству индивидуальный характер, а гармоничное сочетание цветов делает его стильным и уникальным.
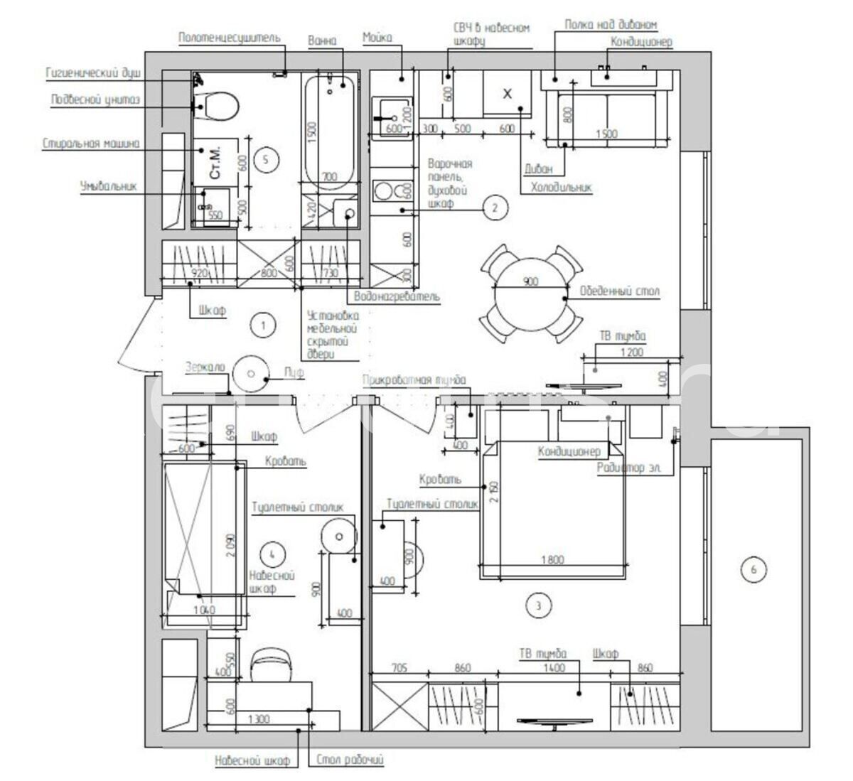
Дизайн-проект трехкомнатной квартиры выполнен в современном стиле. Интересные дизайнерские решения, современный декор, акцентные элементы - все это в данном интерьере смотрится необычайно гармонично и целостно. Разноплановое освещение придает пространству индивидуальный характер, а гармоничное сочетание цветов делает его стильным и уникальным.
