
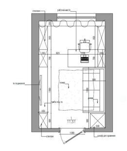
Модный ультрасовременный стиль модернизм нашел свое воплощение в проекте этого кабинета. Функциональная мебель и стильные элементы декора выглядят очень органично и идеально вписаны в интерьер. Удачное сочетание всех компонентов наделяет помещение индивидуальным самобытным характером и создает в нем уютную рабочую атмосферу.
Модный ультрасовременный стиль модернизм нашел свое воплощение в проекте этого кабинета. Функциональная мебель и стильные элементы декора выглядят очень органично и идеально вписаны в интерьер. Удачное сочетание всех компонентов наделяет помещение индивидуальным самобытным характером и создает в нем уютную рабочую атмосферу.
