

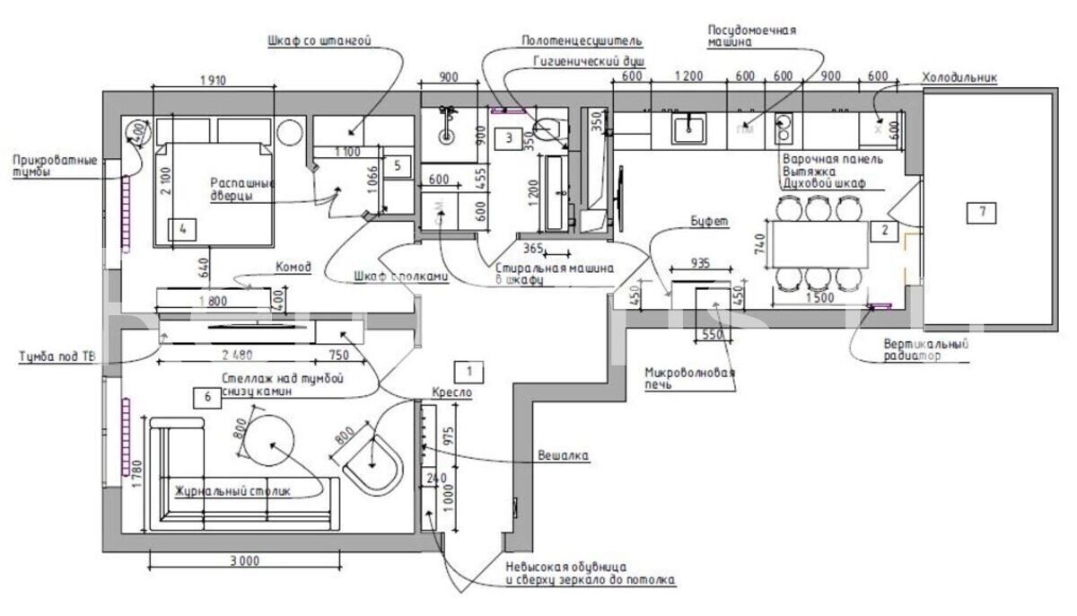
В эклектичном пространстве черты разных дизайнерских направлений дополняют и подчеркивают друг друга. В интерьере этой квартиры все очень гармонично и идеально соответствует выбранной концепции. Материалы и элементы декора отличаются высоким качеством и эстетичным видом.
В эклектичном пространстве черты разных дизайнерских направлений дополняют и подчеркивают друг друга. В интерьере этой квартиры все очень гармонично и идеально соответствует выбранной концепции. Материалы и элементы декора отличаются высоким качеством и эстетичным видом.
