

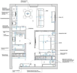
Двухкомнатная квартира оформлена в современном эклектичном стиле. Глубокие тона дополнены выразительными деталями, которые придают интерьеру характер. Разные фактуры, лаконичная мебель и эффектные светильники создают атмосферу уюта и визуальной завершённости.
Двухкомнатная квартира оформлена в современном эклектичном стиле. Глубокие тона дополнены выразительными деталями, которые придают интерьеру характер. Разные фактуры, лаконичная мебель и эффектные светильники создают атмосферу уюта и визуальной завершённости.
