

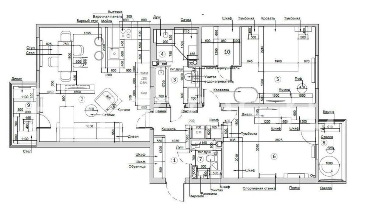
Разрабатывая проект этого дома, дизайнер ориентировалась на основы современного стиля. Функционализм и эстетическая привлекательность здесь на главных ролях. Базовая палитра с использованием различных оттенков серого и бежевого цветов придает пространству ультрамодный вид, а интересный световой сценарий делает интерьер необычайно стильным и современным.
Разрабатывая проект этого дома, дизайнер ориентировалась на основы современного стиля. Функционализм и эстетическая привлекательность здесь на главных ролях. Базовая палитра с использованием различных оттенков серого и бежевого цветов придает пространству ультрамодный вид, а интересный световой сценарий делает интерьер необычайно стильным и современным.
