

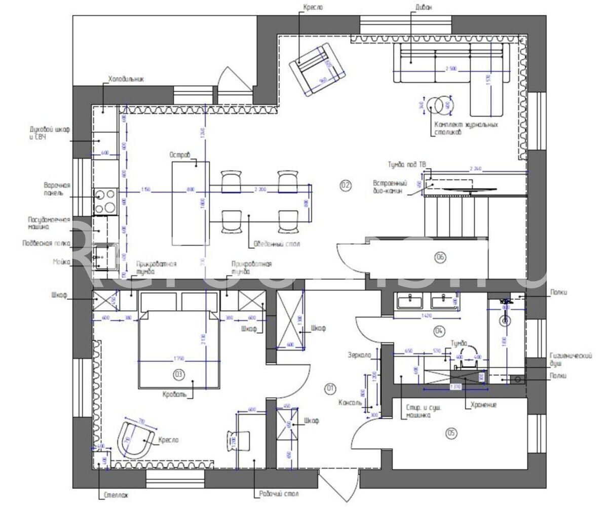
Этаж частного дома оформлен в стиле модернизм — с акцентом на выразительную архитектуру, богатство текстур и актуальный декор. Все элементы объединены в цельное и гармоничное пространство. Многоуровневое освещение подчеркивает характер интерьера, а гармоничные цвета придают ему яркий, запоминающийся облик.
Этаж частного дома оформлен в стиле модернизм — с акцентом на выразительную архитектуру, богатство текстур и актуальный декор. Все элементы объединены в цельное и гармоничное пространство. Многоуровневое освещение подчеркивает характер интерьера, а гармоничные цвета придают ему яркий, запоминающийся облик.
