
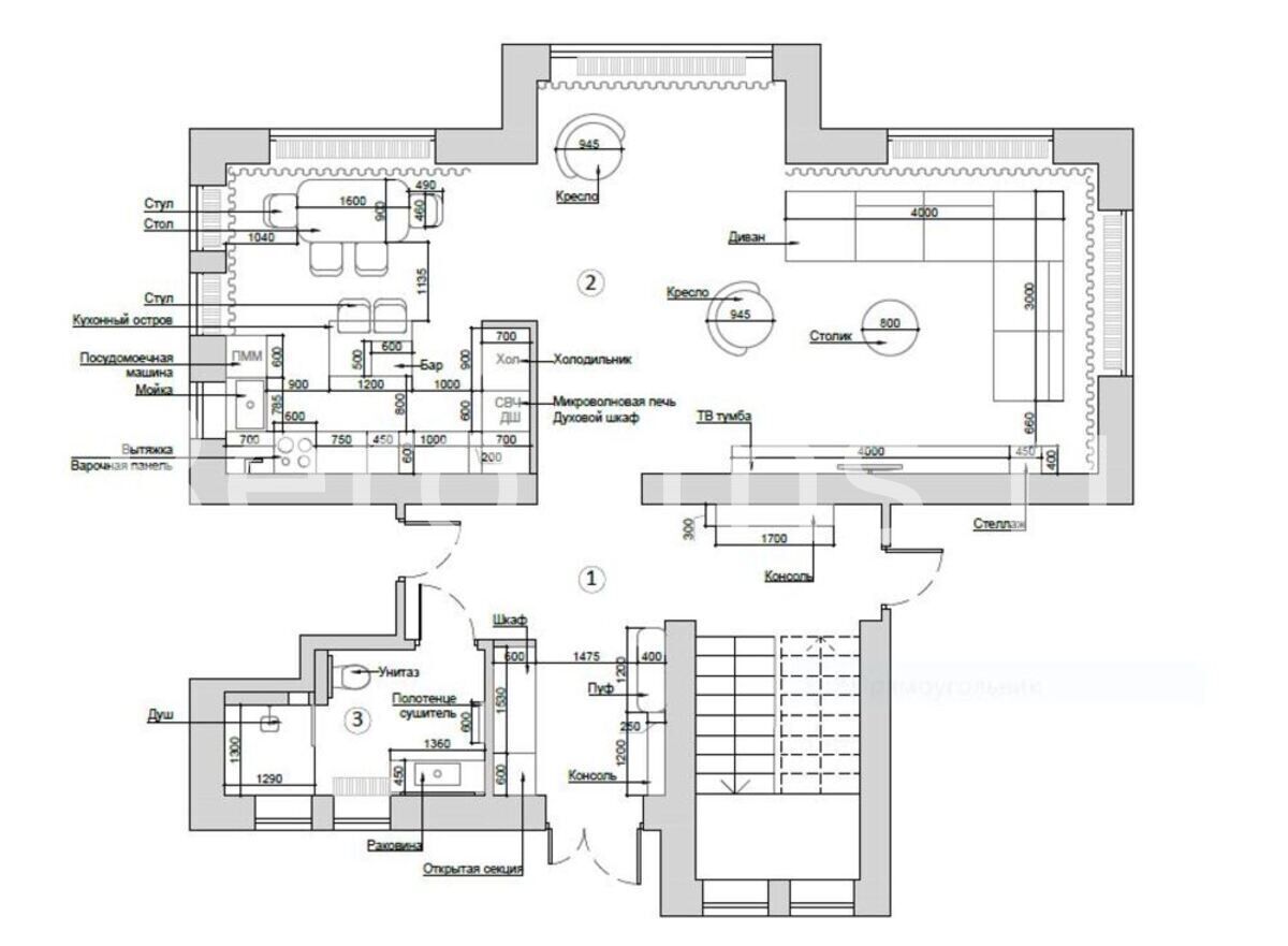
Дизайн-проект дома выполнен в стиле модернизм. Интересные архитектурные формы, обилие разнообразных текстур, современные элементы декора в интерьере смотрятся необычайно гармонично и целостно. Разноплановое освещение придает пространству индивидуальный характер, а гармоничное сочетание светлых и темных тонов делает пространство стильным и уникальным.
Дизайн-проект дома выполнен в стиле модернизм. Интересные архитектурные формы, обилие разнообразных текстур, современные элементы декора в интерьере смотрятся необычайно гармонично и целостно. Разноплановое освещение придает пространству индивидуальный характер, а гармоничное сочетание светлых и темных тонов делает пространство стильным и уникальным.
