

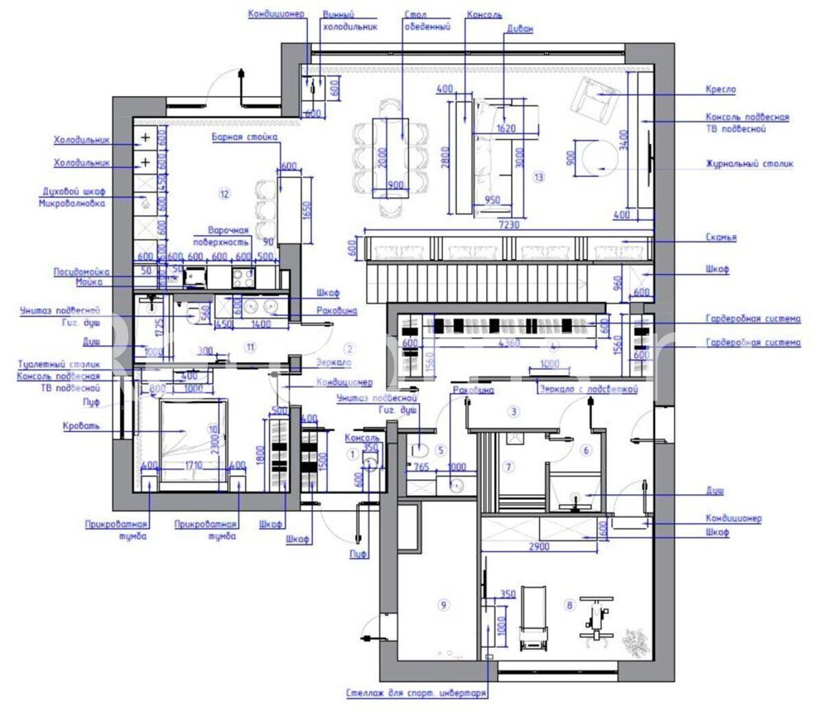
Дизайн-проект этого дома выполнен в стиле модернизм. Интерьер получился необычайно удобным, эргономичным и эстетически привлекательных. Все предметы сочетаются друг с другом и в полной мере отражают специфику стиля. Контрастная цветовая гамма создает в помещении атмосферу спокойствия и умиротворения, а разноплановое освещение делает его уютным и стильным.
Дизайн-проект этого дома выполнен в стиле модернизм. Интерьер получился необычайно удобным, эргономичным и эстетически привлекательных. Все предметы сочетаются друг с другом и в полной мере отражают специфику стиля. Контрастная цветовая гамма создает в помещении атмосферу спокойствия и умиротворения, а разноплановое освещение делает его уютным и стильным.
