

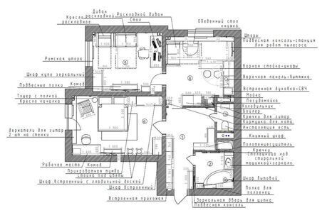
Дизайн-проект этой трёхкомнатной квартиры воплощает лучшие традиции скандинавского стиля с лёгкими нотками Прованса. Пространство получилось лаконичным, функциональным и изысканным одновременно. В основе интерьера — характерные для скандинавской эстетики мягкие оттенки белого, голубого и фисташкового. Натуральные материалы в отделке и декоре придают помещениям особую атмосферу тепла и уюта. Каждая зона продумана до деталей, создавая ощущение цельности и гармонии во всём интерьере.
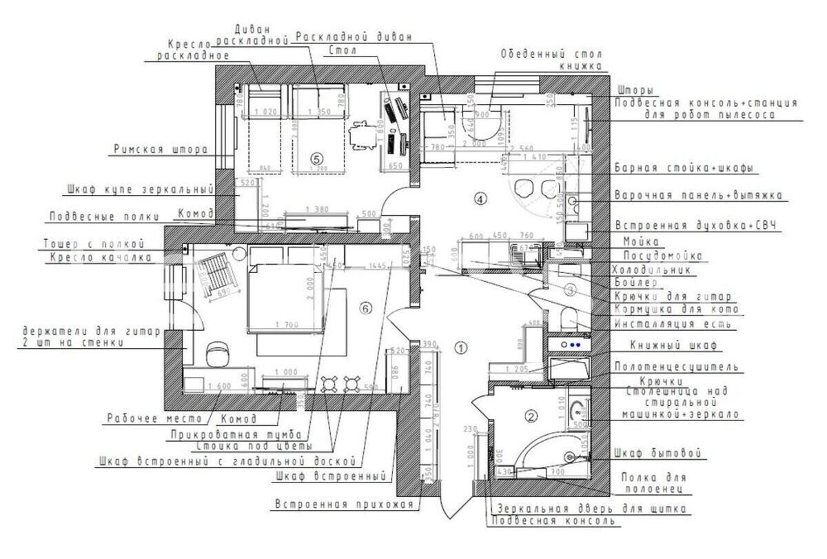
Дизайн-проект этой трёхкомнатной квартиры воплощает лучшие традиции скандинавского стиля с лёгкими нотками Прованса. Пространство получилось лаконичным, функциональным и изысканным одновременно. В основе интерьера — характерные для скандинавской эстетики мягкие оттенки белого, голубого и фисташкового. Натуральные материалы в отделке и декоре придают помещениям особую атмосферу тепла и уюта. Каждая зона продумана до деталей, создавая ощущение цельности и гармонии во всём интерьере.
