

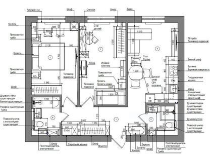
Эта трехкомнатная квартира — воплощение современного модернизма в его элегантном и продуманном проявлении. Чистая архитектура форм, выверенная палитра оттенков и безупречная эргономика создают ощущение лёгкости и визуального комфорта. Акцент на свет и благородные материалы придаёт пространству динамику и делает интерьер по-настоящему актуальным.
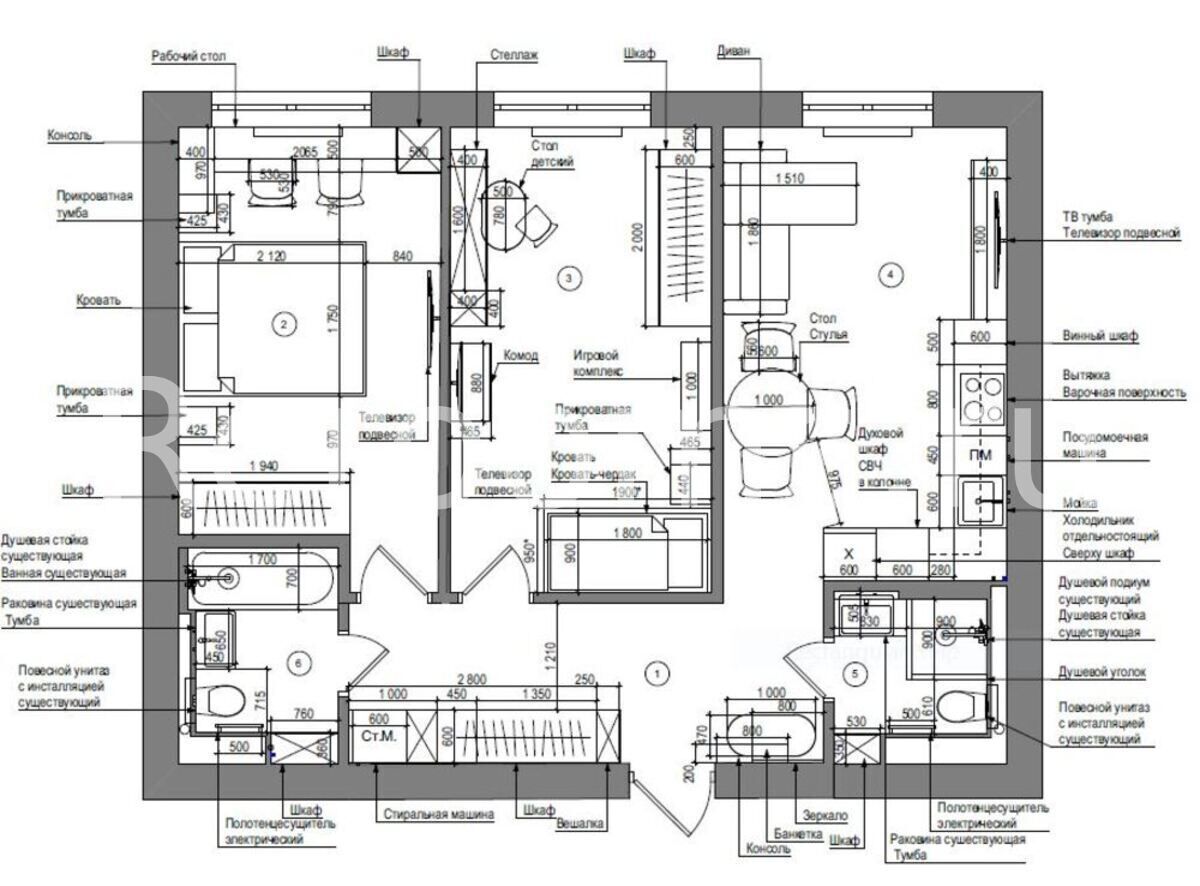
Эта трехкомнатная квартира — воплощение современного модернизма в его элегантном и продуманном проявлении. Чистая архитектура форм, выверенная палитра оттенков и безупречная эргономика создают ощущение лёгкости и визуального комфорта. Акцент на свет и благородные материалы придаёт пространству динамику и делает интерьер по-настоящему актуальным.
