

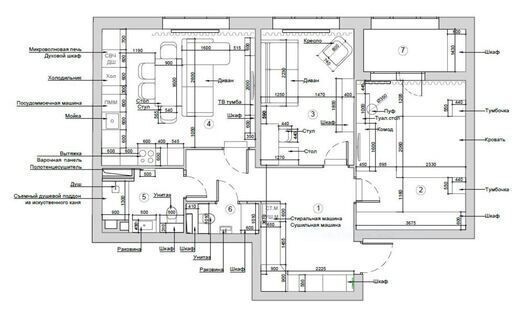
Интерьер, оформленный в стиле модернизм, отличается особой утонченностью. Архитектура пространства, цветовая гамма, построенная на гармоничном сочетании базовых цветов и контрастных акцентов, удобная эргономичная мебель - все это придает интерьеру современный вид и работает на поддержание выбранной стилистической концепции.
Интерьер, оформленный в стиле модернизм, отличается особой утонченностью. Архитектура пространства, цветовая гамма, построенная на гармоничном сочетании базовых цветов и контрастных акцентов, удобная эргономичная мебель - все это придает интерьеру современный вид и работает на поддержание выбранной стилистической концепции.
