

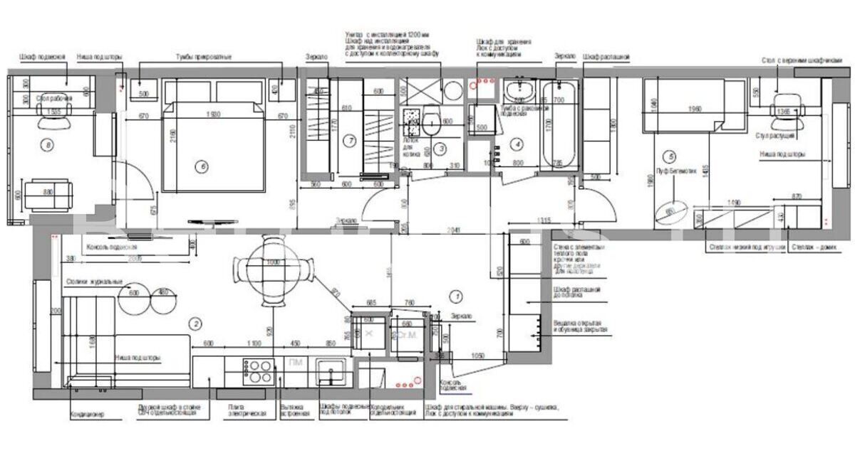
Разрабатывая проект этой двухкомнатной квартиры, дизайнер ориентировалась на основы стиля модернизм. Пространство получилось очень гармоничным и целостным. Обилие разнообразных текстур, современные элементы декора и разноплановое освещение придали интерьеру индивидуальный характер, а светлая цветовая гамма с яркими акцентами сделала его стильным и уникальным.
Разрабатывая проект этой двухкомнатной квартиры, дизайнер ориентировалась на основы стиля модернизм. Пространство получилось очень гармоничным и целостным. Обилие разнообразных текстур, современные элементы декора и разноплановое освещение придали интерьеру индивидуальный характер, а светлая цветовая гамма с яркими акцентами сделала его стильным и уникальным.
