

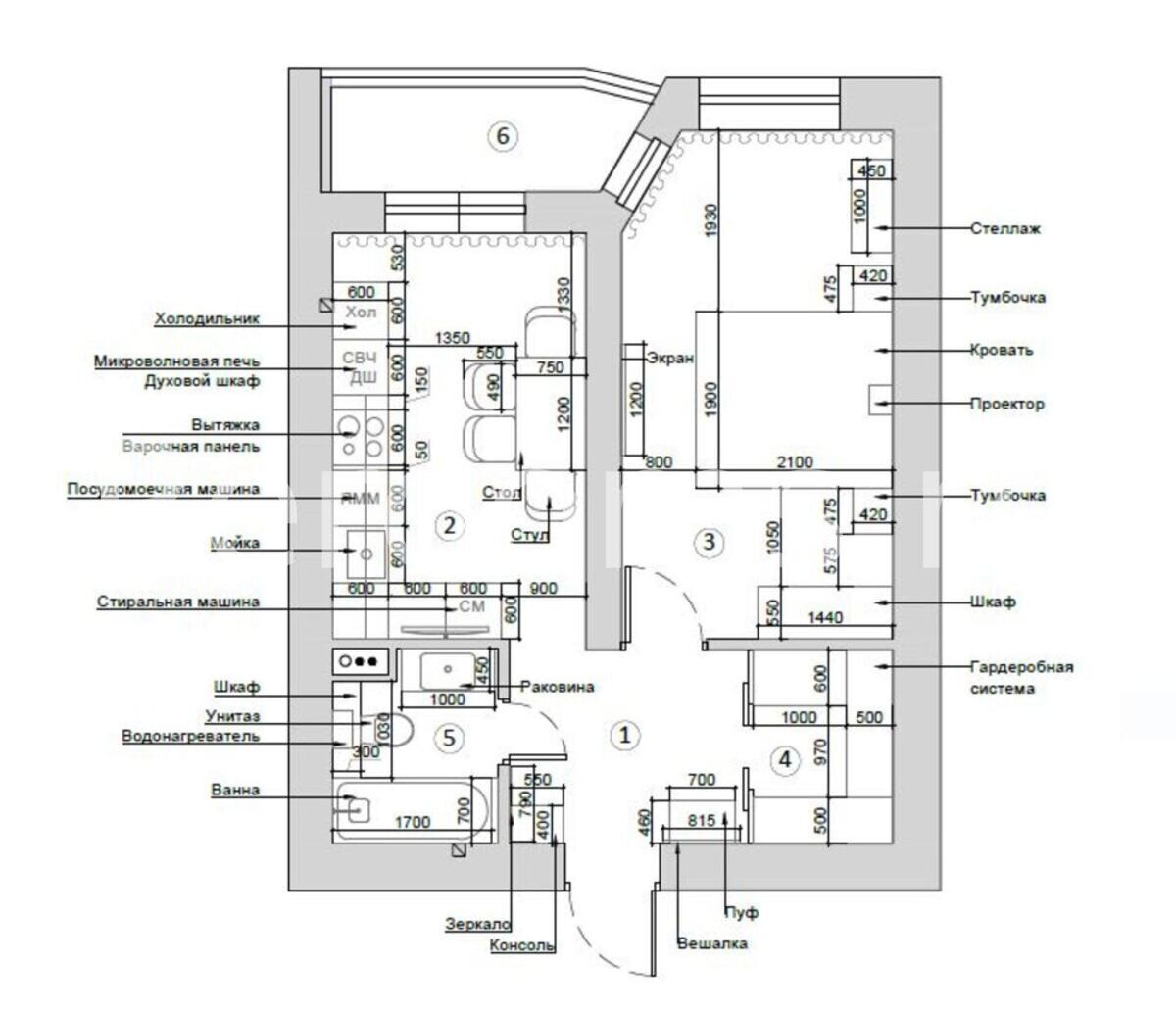
Интерьер этой однокомнатной квартиры выполнен в стиле лофт. Брутальные текстуры, современные индустриальные светильники, а также металлические элементы придают помещению дух фабричного пространства.
Интерьер этой однокомнатной квартиры выполнен в стиле лофт. Брутальные текстуры, современные индустриальные светильники, а также металлические элементы придают помещению дух фабричного пространства.
