

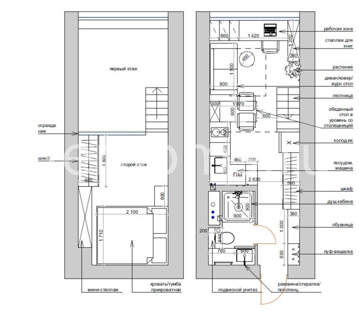
Дизайн-проект двухуровневой квартиры выполнен в стиле лофт. Интерьер выдержан с соблюдением всех правил лофтовой стилистики. Имитация натурального дерева, фабричные светильники, характерная цветовая гамма - все это придает пространству ультрасовременный вид. Смелые архитектурные находки, разноплановая отделка и декор позволяют визуально поделить квартиру на несколько функциональных зон.
Дизайн-проект двухуровневой квартиры выполнен в стиле лофт. Интерьер выдержан с соблюдением всех правил лофтовой стилистики. Имитация натурального дерева, фабричные светильники, характерная цветовая гамма - все это придает пространству ультрасовременный вид. Смелые архитектурные находки, разноплановая отделка и декор позволяют визуально поделить квартиру на несколько функциональных зон.
