

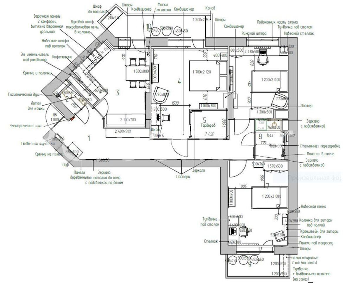
Дизайн-проект трехкомнатной квартиры выполнен в стиле модернизм. Благодаря гармоничному сочетанию различных текстур и элементов декора, интерьер получился очень гармоничным и целостным. Разноплановое освещение придает пространству индивидуальный характер, а гармоничное сочетание цветов делает его стильным и уникальным.
Дизайн-проект трехкомнатной квартиры выполнен в стиле модернизм. Благодаря гармоничному сочетанию различных текстур и элементов декора, интерьер получился очень гармоничным и целостным. Разноплановое освещение придает пространству индивидуальный характер, а гармоничное сочетание цветов делает его стильным и уникальным.
