

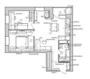
Дизайн-проект трехкомнатной квартиры выполнен в современном стиле. Интересные архитектурные формы, смелые дизайнерские приемы, обилие разнообразных текстур, современные элементы декора - все это выглядит необычайно гармонично и целостно. Разноплановое освещение придает пространству индивидуальный характер, а светлая цветовая гамма делает его стильным и уникальным.
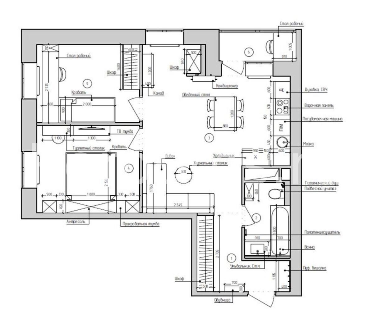
Дизайн-проект трехкомнатной квартиры выполнен в современном стиле. Интересные архитектурные формы, смелые дизайнерские приемы, обилие разнообразных текстур, современные элементы декора - все это выглядит необычайно гармонично и целостно. Разноплановое освещение придает пространству индивидуальный характер, а светлая цветовая гамма делает его стильным и уникальным.
