

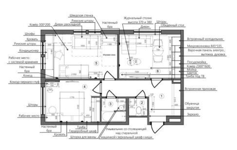
Современная классика в интерьере — это воплощение сдержанной изысканности. В неоклассике гармония и красота сочетаются с удобством и функциональностью. Это стиль, который подразумевает сохранение свободного пространства, практичность и невероятный уют, именно так как получилось в этой трехкомнатной квартире.
Современная классика в интерьере — это воплощение сдержанной изысканности. В неоклассике гармония и красота сочетаются с удобством и функциональностью. Это стиль, который подразумевает сохранение свободного пространства, практичность и невероятный уют, именно так как получилось в этой трехкомнатной квартире.
