

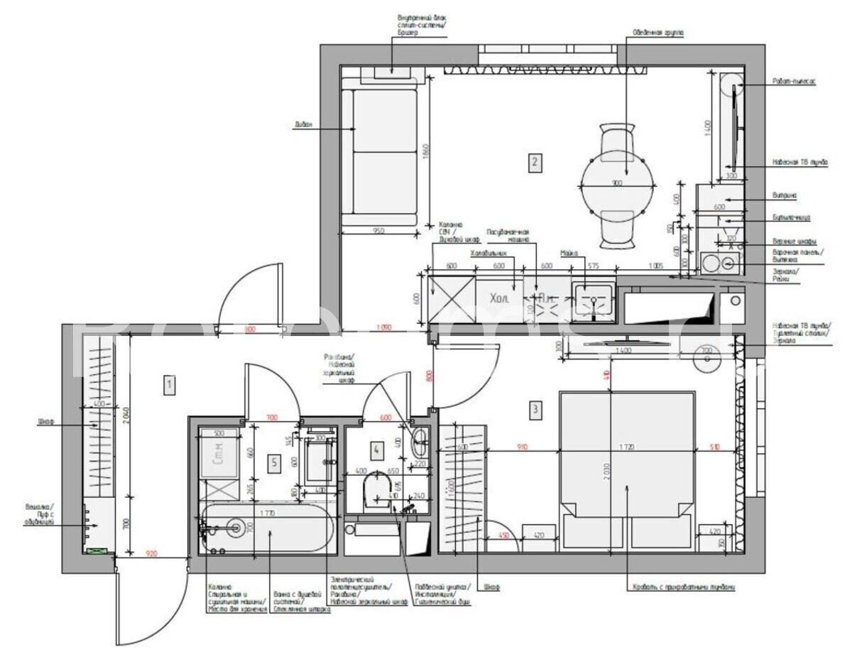
Дизайн этой небольшой двушки выполнен в стиле модернизм. Интересная архитектура пространства, богатство текстур и современные декоративные элементы создают гармоничный и цельный образ. Разноплановое освещение подчеркивает индивидуальность пространства, а контрастная палитра делает его стильным и неповторимым.
Дизайн этой небольшой двушки выполнен в стиле модернизм. Интересная архитектура пространства, богатство текстур и современные декоративные элементы создают гармоничный и цельный образ. Разноплановое освещение подчеркивает индивидуальность пространства, а контрастная палитра делает его стильным и неповторимым.
