

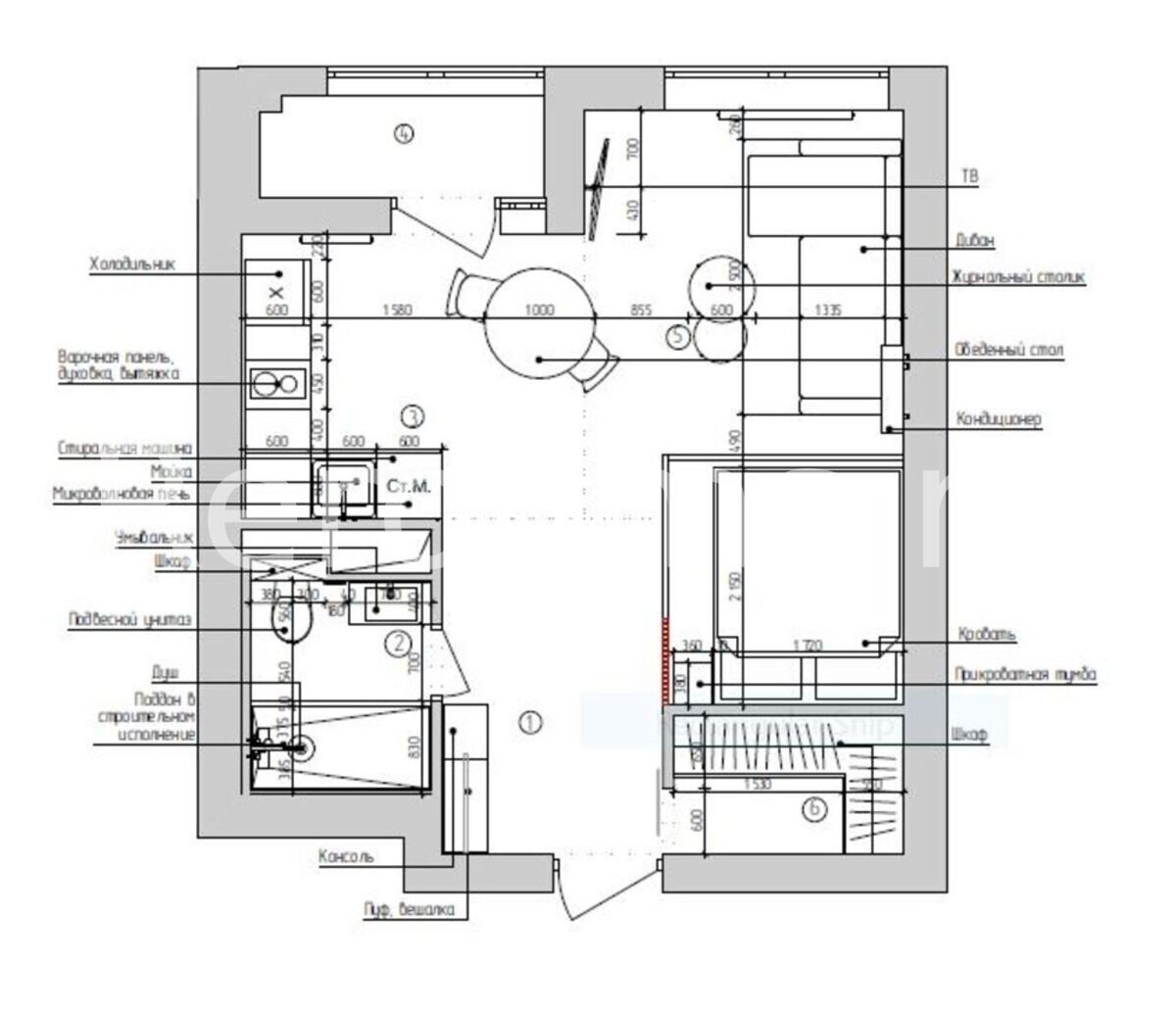
Интерьер этой однокомнатной квартиры оформлен в современном стиле. Необычные дизайнерские приемы придают пространству целостность и гармонию. Разнообразные сценарии освещения создают настроение, а продуманная цветовая гамма подчеркивает уникальность помещения.
Интерьер этой однокомнатной квартиры оформлен в современном стиле. Необычные дизайнерские приемы придают пространству целостность и гармонию. Разнообразные сценарии освещения создают настроение, а продуманная цветовая гамма подчеркивает уникальность помещения.
