

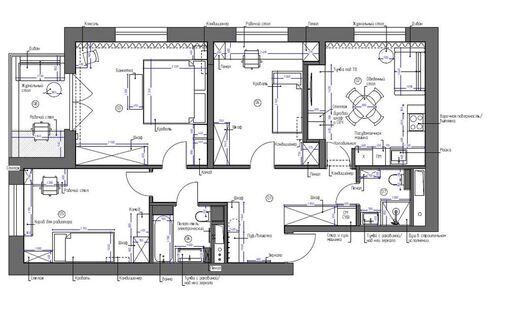
Интерьер этой трёхкомнатной квартиры выполнен в современном стиле. Оригинальные решения формируют цельное и уютное пространство, а разноплановое освещение придаёт интерьеру глубину и настроение. Колористика тщательно продумана и подчеркивает индивидуальность каждой зоны.
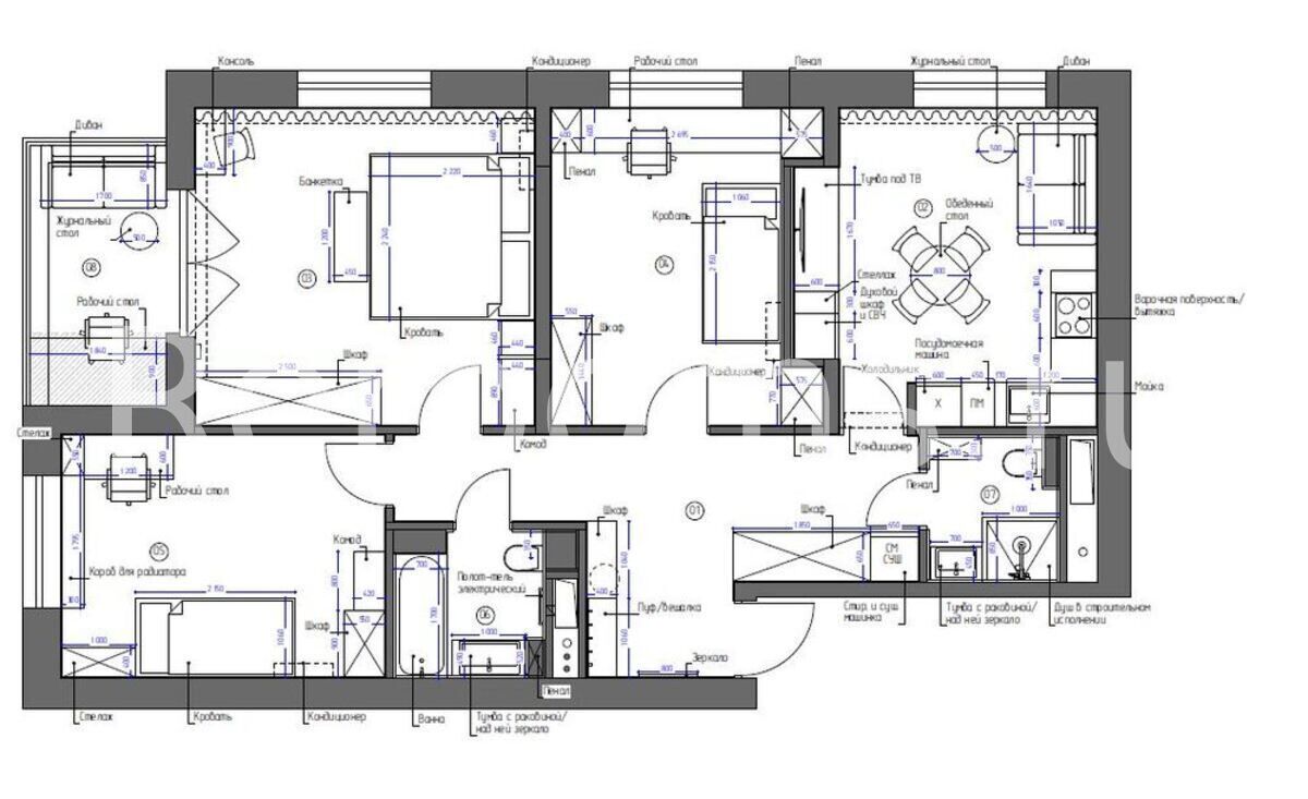
Интерьер этой трёхкомнатной квартиры выполнен в современном стиле. Оригинальные решения формируют цельное и уютное пространство, а разноплановое освещение придаёт интерьеру глубину и настроение. Колористика тщательно продумана и подчеркивает индивидуальность каждой зоны.
