

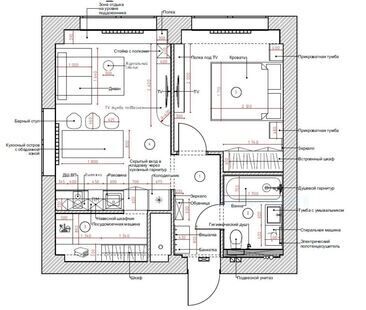
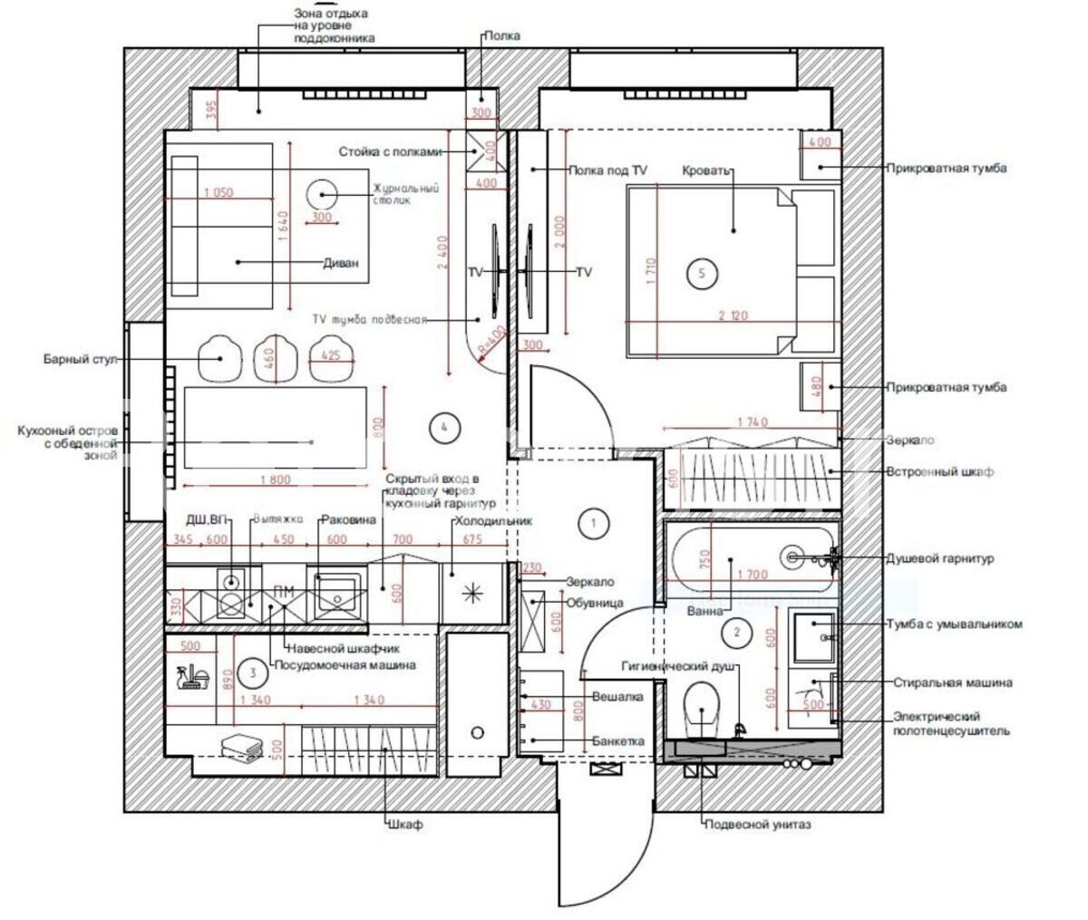
В основе оформления этой двухкомнатной квартиры лежит современный стиль. Натуральная цветовая палитра, игра текстур, премиальные отделочные материалы и продуманное освещение создали пространство, которое одновременно комфортно и визуально привлекательно.
В основе оформления этой двухкомнатной квартиры лежит современный стиль. Натуральная цветовая палитра, игра текстур, премиальные отделочные материалы и продуманное освещение создали пространство, которое одновременно комфортно и визуально привлекательно.
