

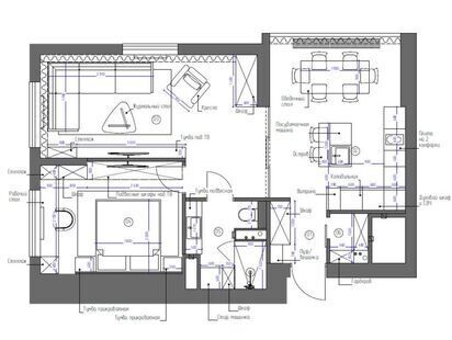
Дизайн-проект двухкомнатной квартиры выполнен в стиле модернизм. Четкая геометрия пространства, интересные архитектурные формы, разнообразные текстуры, современные элементы декора в интерьере этой квартиры смотрятся необычайно гармонично и целостно. Разноплановое освещение придает пространству индивидуальный характер, а контрастная цветовая гамма делает его стильным и уникальным.
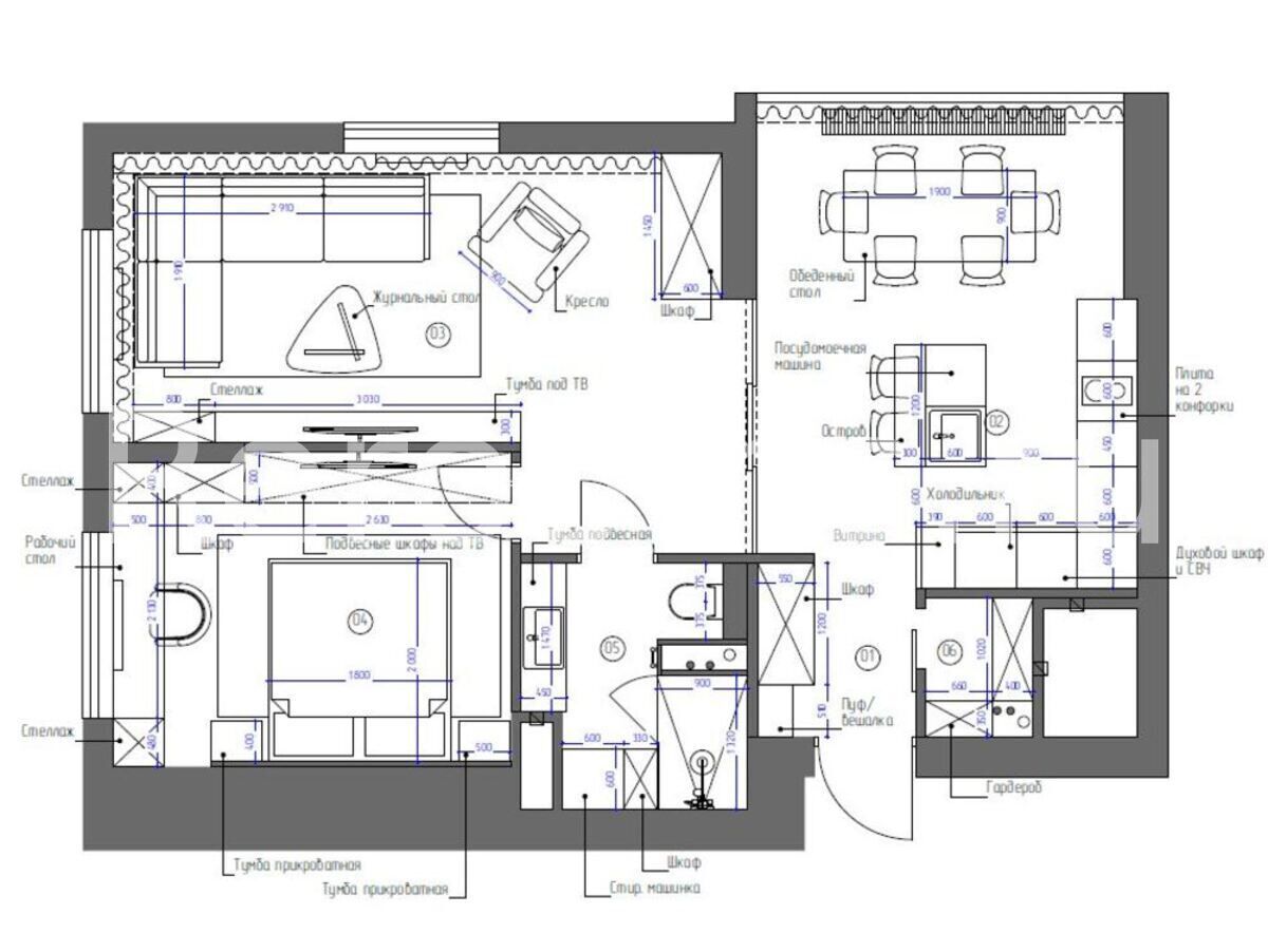
Дизайн-проект двухкомнатной квартиры выполнен в стиле модернизм. Четкая геометрия пространства, интересные архитектурные формы, разнообразные текстуры, современные элементы декора в интерьере этой квартиры смотрятся необычайно гармонично и целостно. Разноплановое освещение придает пространству индивидуальный характер, а контрастная цветовая гамма делает его стильным и уникальным.
