

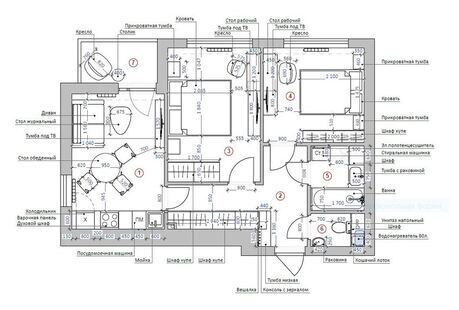
Дизайн-проект этой трехкомнатной квартиры выполнен в лучших традициях скандинавского стиля. Здесь все достаточно лаконично, функционально и изысканно. В интерьере преобладают характерные для скандинавской эстетики тона: серый, бежевый и фисташковый. Наличие натуральных материалов в отделке и оформлении создает в помещении особую атмосферу тепла и уюта. Интерьер выглядит цельно и очень гармонично.
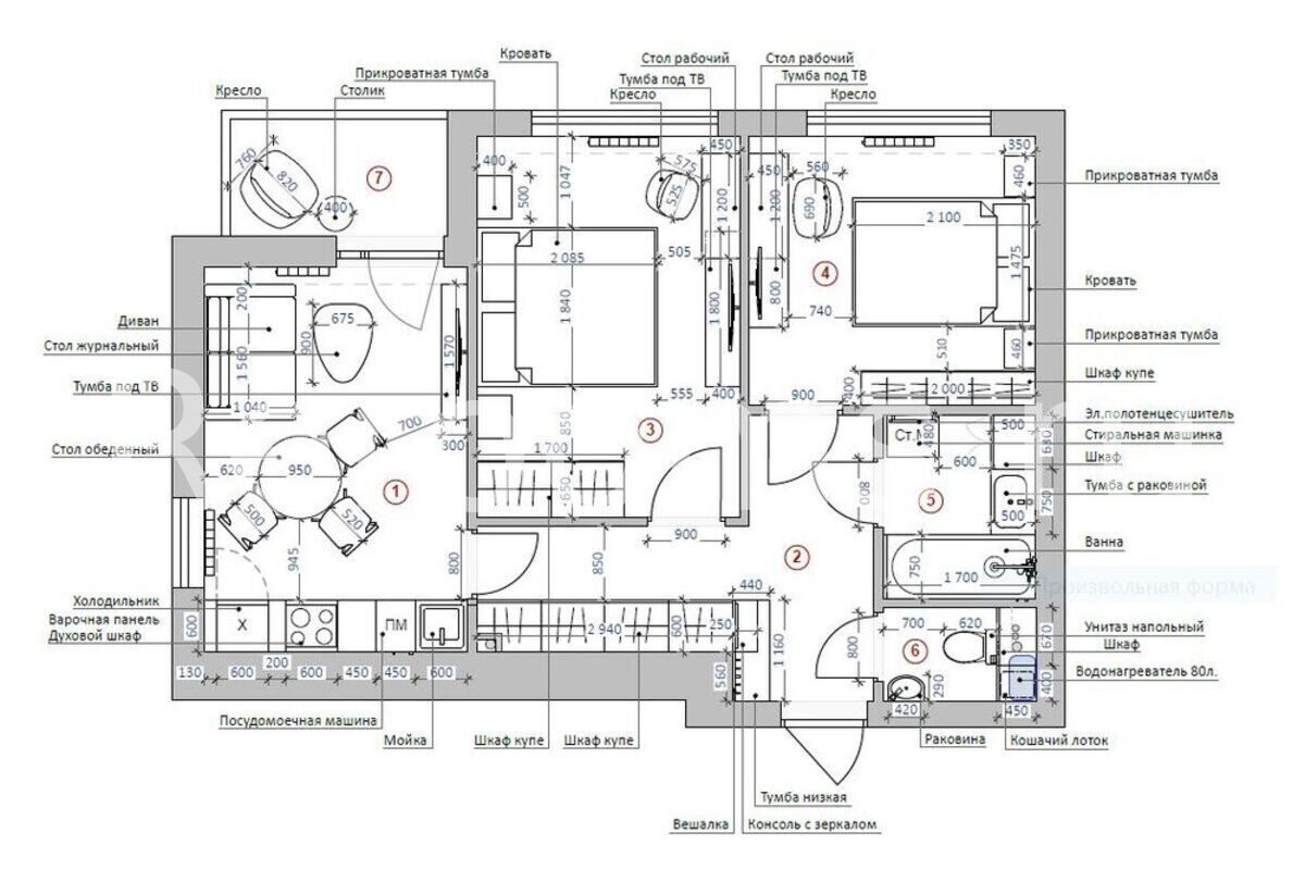
Дизайн-проект этой трехкомнатной квартиры выполнен в лучших традициях скандинавского стиля. Здесь все достаточно лаконично, функционально и изысканно. В интерьере преобладают характерные для скандинавской эстетики тона: серый, бежевый и фисташковый. Наличие натуральных материалов в отделке и оформлении создает в помещении особую атмосферу тепла и уюта. Интерьер выглядит цельно и очень гармонично.
