

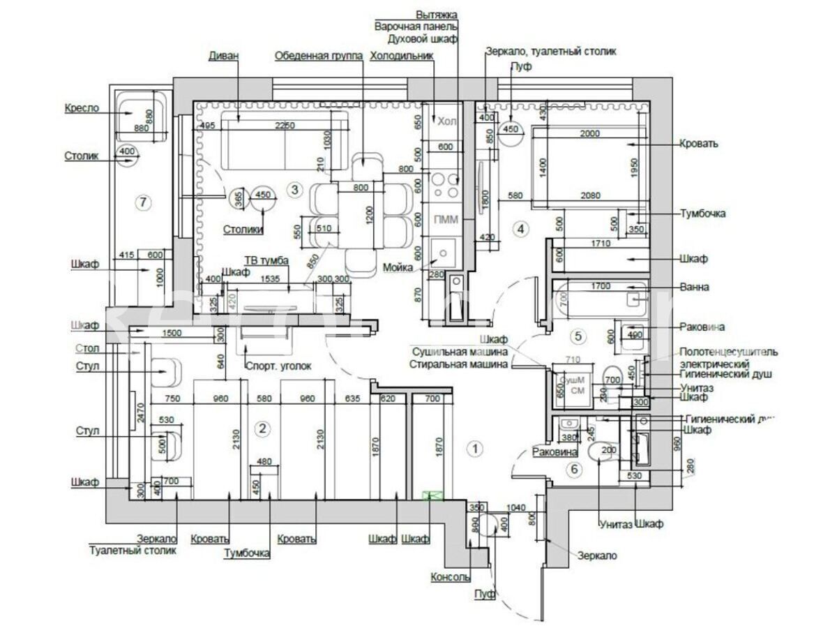
Интерьер этой трехкомнатной квартиры оформлен в современном стиле. Уравновешенная цветовая палитра создает ощущение гармонии, а архитектурные акценты, разнообразие фактур и оригинальные световые решения объединяютдизайен в единую, продуманную концепцию.
Интерьер этой трехкомнатной квартиры оформлен в современном стиле. Уравновешенная цветовая палитра создает ощущение гармонии, а архитектурные акценты, разнообразие фактур и оригинальные световые решения объединяютдизайен в единую, продуманную концепцию.
