

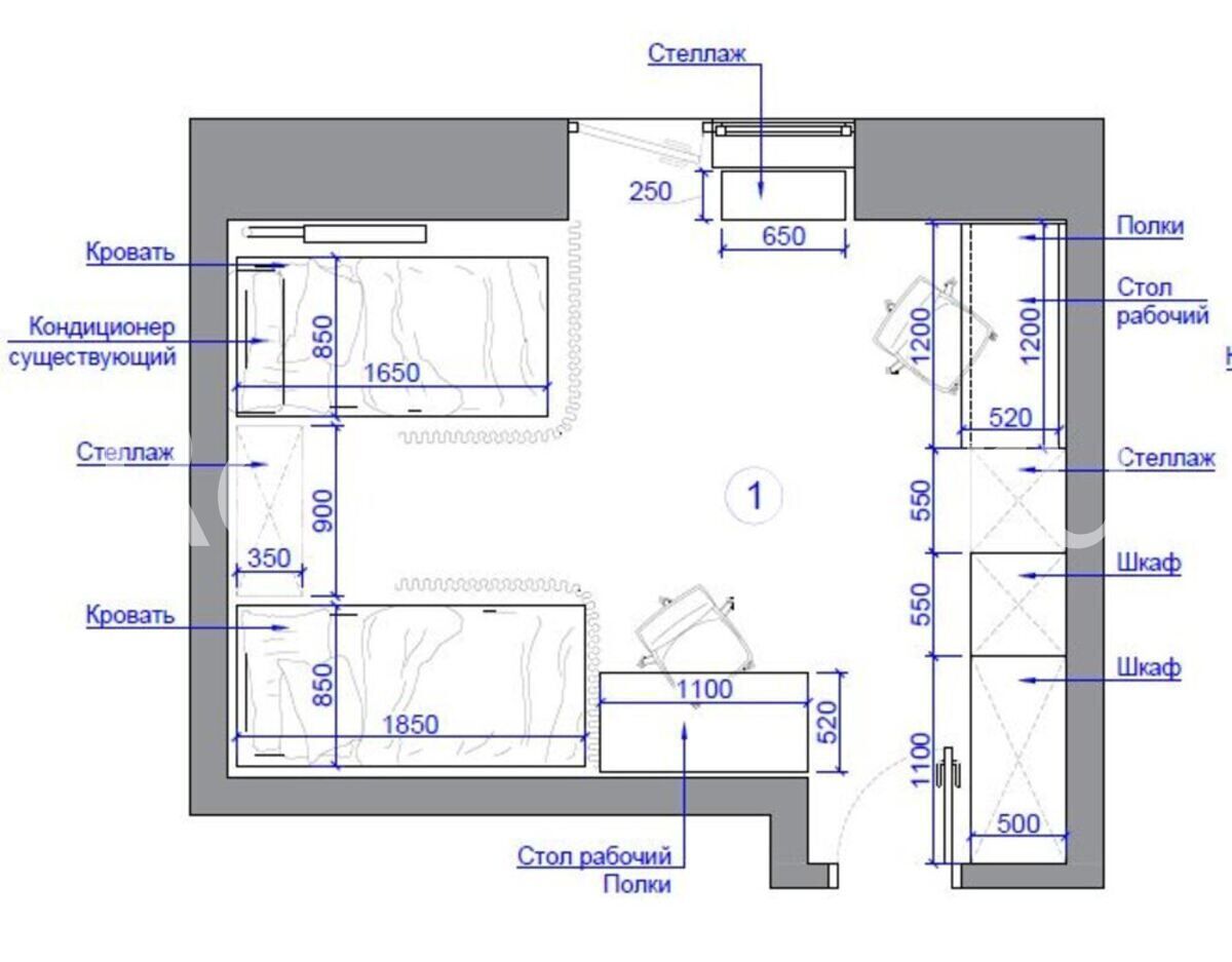
Детская комната, выполненная в стиле контемпорари, получилась очень гармоничной и функциональной. Цветовая гамма, с использованием бежевого и ярко-бирюзового цветов, подчеркивает характер интерьера и делает его уютным и милым. Особое внимание дизайнер уделил мебельному оснащению. Здесь каждый предмет гарнитура продуман до мелочей. Мебель идеально вписана в пространство и отличается эргономичностью.
Детская комната, выполненная в стиле контемпорари, получилась очень гармоничной и функциональной. Цветовая гамма, с использованием бежевого и ярко-бирюзового цветов, подчеркивает характер интерьера и делает его уютным и милым. Особое внимание дизайнер уделил мебельному оснащению. Здесь каждый предмет гарнитура продуман до мелочей. Мебель идеально вписана в пространство и отличается эргономичностью.
