
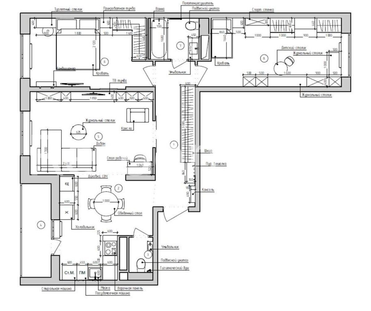
Проект этой трехкомнатной квартиры выполнен в скандинавском стиле. Дизайн отличается лаконичностью и изысканным видом. Наличие натуральных материалов в отделке и оформлении создает в помещении особую атмосферу тепла и уюта.
Проект этой трехкомнатной квартиры выполнен в скандинавском стиле. Дизайн отличается лаконичностью и изысканным видом. Наличие натуральных материалов в отделке и оформлении создает в помещении особую атмосферу тепла и уюта.
