

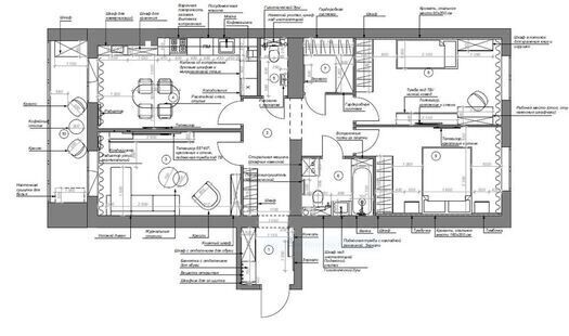
Интерьер в стиле модернизма пленяет изящной эстетикой. Лаконичная архитектурная структура, сбалансированная цветовая гамма и удобная, функциональная мебель формируют современный образ квартиры, точно отражающий задуманную идею.
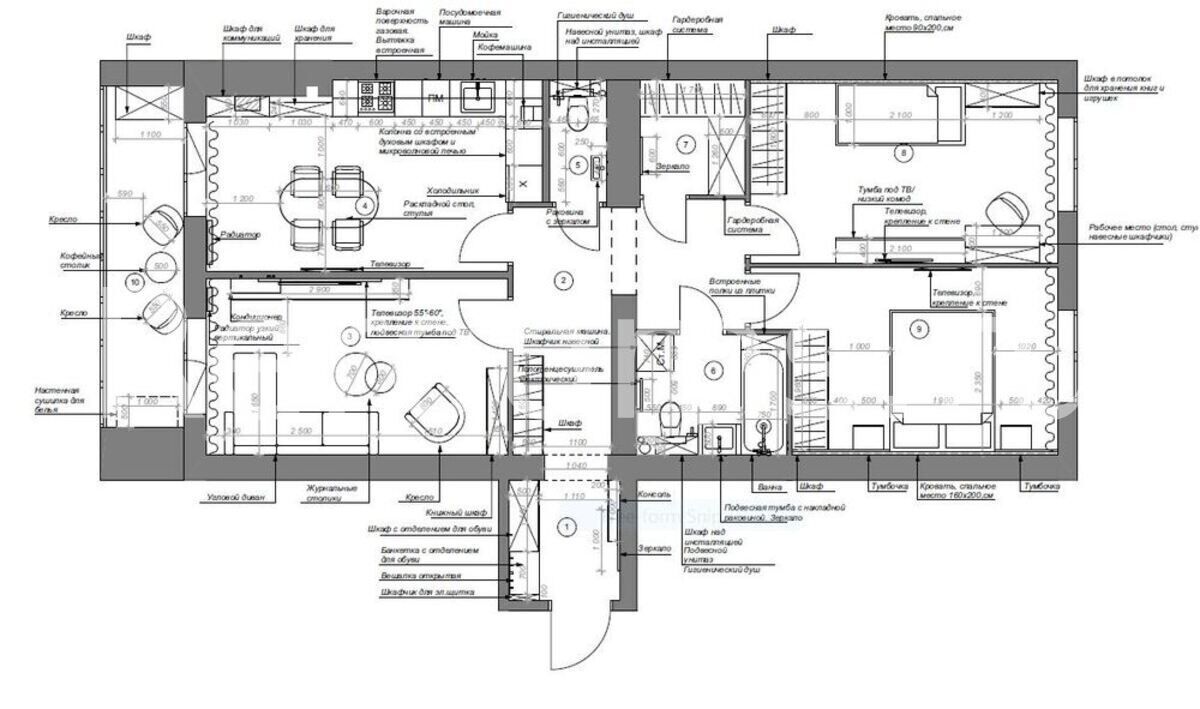
Интерьер в стиле модернизма пленяет изящной эстетикой. Лаконичная архитектурная структура, сбалансированная цветовая гамма и удобная, функциональная мебель формируют современный образ квартиры, точно отражающий задуманную идею.
