

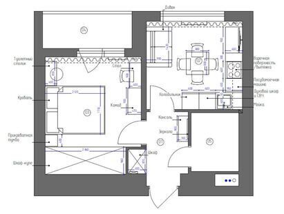
Интерьер этой квартиры выдержан в современном стиле. Контрастные оттенки придают пространству актуальность и изысканность, а комбинация разнообразных материалов и оригинальных световых решений формирует стильную и выразительную атмосферу.
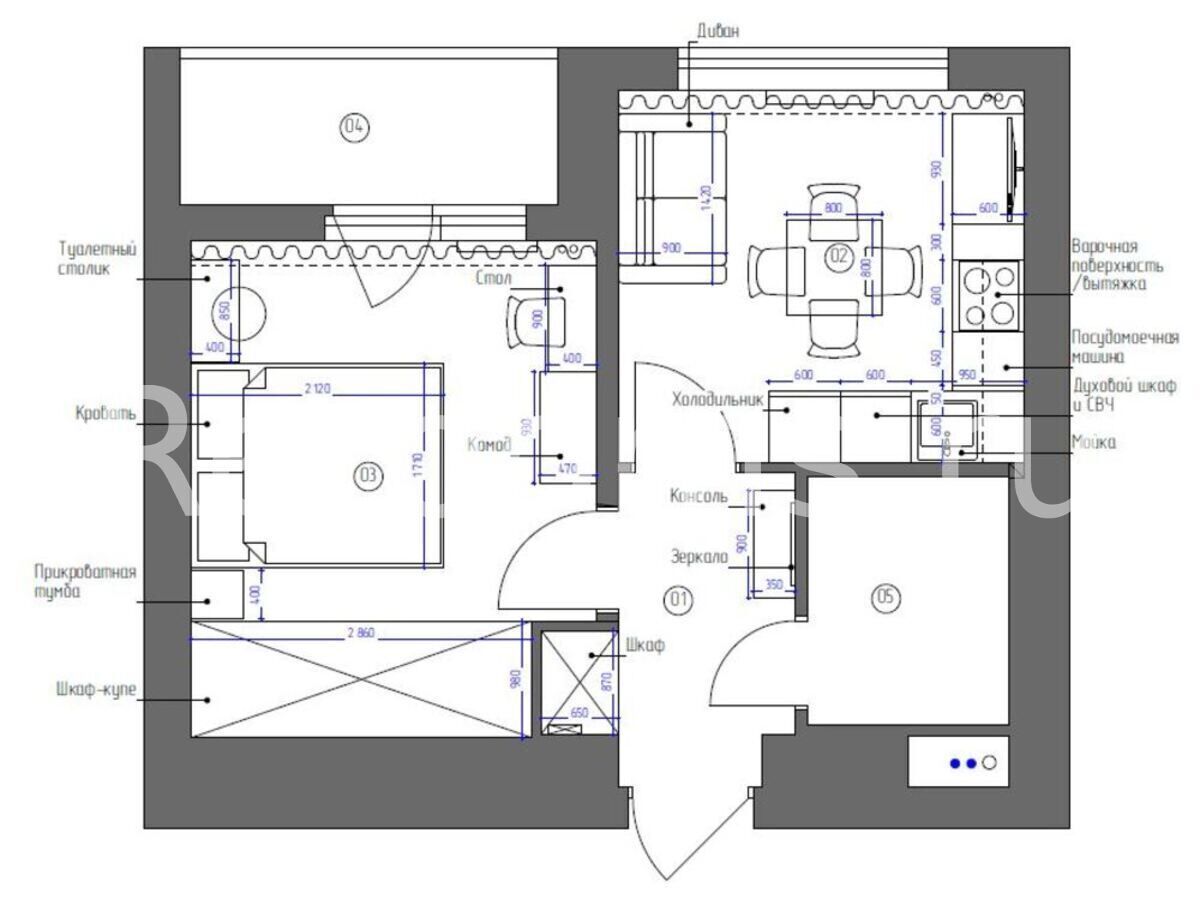
Интерьер этой квартиры выдержан в современном стиле. Контрастные оттенки придают пространству актуальность и изысканность, а комбинация разнообразных материалов и оригинальных световых решений формирует стильную и выразительную атмосферу.
