

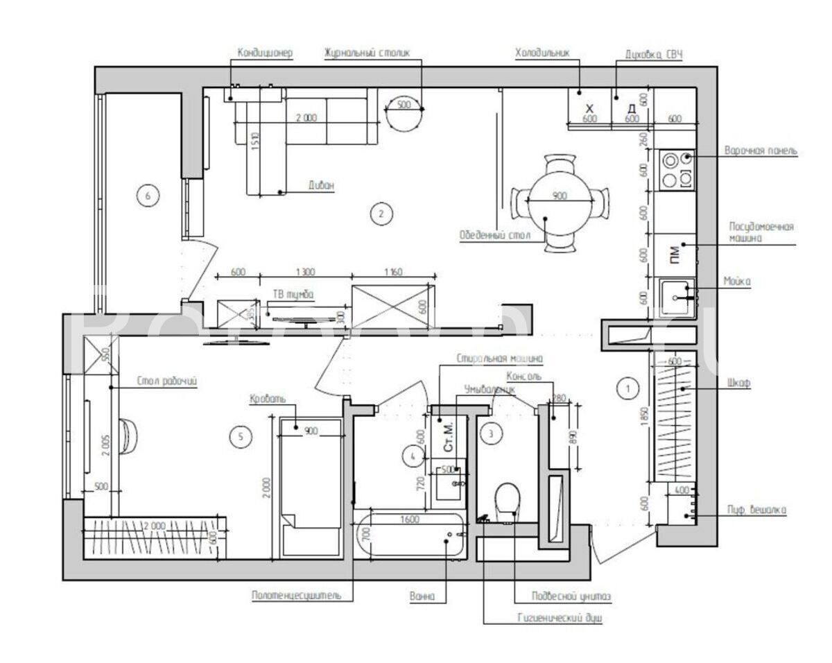
Интерьеры в стиле контемпорари соответствуют современным требованиям комфорта и функциональности. Базовая палитра, выбранная для этой двухкомнатной квартиры, достаточно нейтральна и гармонична. Интересные формы и чистые линии - одна из главных особенностей интерьера в стиле контемпорари, нашла свое отражение в четкой геометрии потолков и стен, мебели и предметах декора.
Интерьеры в стиле контемпорари соответствуют современным требованиям комфорта и функциональности. Базовая палитра, выбранная для этой двухкомнатной квартиры, достаточно нейтральна и гармонична. Интересные формы и чистые линии - одна из главных особенностей интерьера в стиле контемпорари, нашла свое отражение в четкой геометрии потолков и стен, мебели и предметах декора.
