

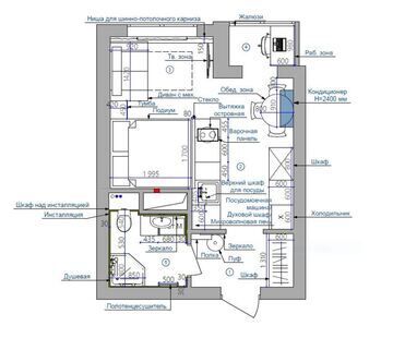
Дизайн этой квартиры-студии выдержан в современном стиле. Цветовая гамма с яркими контрастными акцентами делает интерьер ультрамодным и актуальным. Грамотно спроектированное пространство, сочетание разнообразных материалов и продуманное освещение гармонично дополняют концепцию современного оформления.
Дизайн этой квартиры-студии выдержан в современном стиле. Цветовая гамма с яркими контрастными акцентами делает интерьер ультрамодным и актуальным. Грамотно спроектированное пространство, сочетание разнообразных материалов и продуманное освещение гармонично дополняют концепцию современного оформления.
