

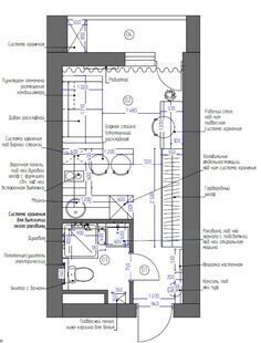
Проект этой квартиры-студии выполнен в скандинавском стиле. Дизайн отличается простотой, лаконичностью и изысканным видом. В интерьере преобладают светлые тона. Наличие натуральных материалов в отделке и оформлении создает в помещении особую атмосферу тепла и уюта.
Проект этой квартиры-студии выполнен в скандинавском стиле. Дизайн отличается простотой, лаконичностью и изысканным видом. В интерьере преобладают светлые тона. Наличие натуральных материалов в отделке и оформлении создает в помещении особую атмосферу тепла и уюта.
