

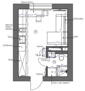
Интерьер этой мини-студии оформлен в современном стиле. Лаконичная мебель, гармоничные цвета и различные дизайнерские приемы визуально увеличивают пространство и делают его максимально удобным и красивым.
Интерьер этой мини-студии оформлен в современном стиле. Лаконичная мебель, гармоничные цвета и различные дизайнерские приемы визуально увеличивают пространство и делают его максимально удобным и красивым.
