

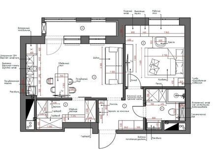
Проект этой однокомнатной квартиры выполнен в стиле Американская классика. Светлая цветовая гамма, с использованием бежевого и серого, обилие разнообразных текстур и современные дизайнерские приемы делают помещение интересным и уникальным. Каждый элемент интерьера хорошо продуман и идеально вписан в общую концепцию.
Проект этой однокомнатной квартиры выполнен в стиле Американская классика. Светлая цветовая гамма, с использованием бежевого и серого, обилие разнообразных текстур и современные дизайнерские приемы делают помещение интересным и уникальным. Каждый элемент интерьера хорошо продуман и идеально вписан в общую концепцию.
