
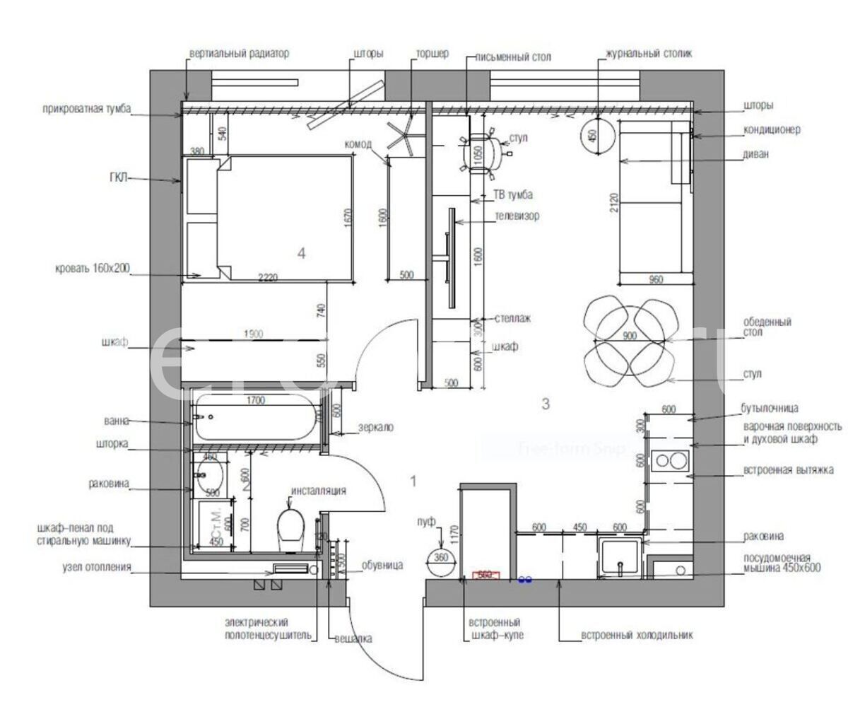
При создании проекта этой двухкомнатной квартиры дизайнер опиралась на принципы модернизма. В результате получилось цельное и гармоничное пространство. Богатство фактур, современные декоративные элементы и многослойное освещение наполнили интерьер индивидуальностью, а светлая палитра с яркими акцентами придала ему стильность и неповторимость.
При создании проекта этой двухкомнатной квартиры дизайнер опиралась на принципы модернизма. В результате получилось цельное и гармоничное пространство. Богатство фактур, современные декоративные элементы и многослойное освещение наполнили интерьер индивидуальностью, а светлая палитра с яркими акцентами придала ему стильность и неповторимость.
