

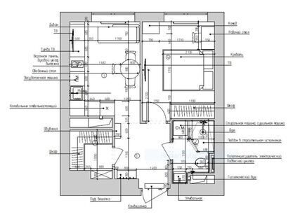
Дизайн этой однокомнатной квартиры выдержан в духе минимализма. Четкие линии, лаконичные архитектурные формы и нейтральная цветовая палитра наполняют интерьер ощущением гармонии и уюта. Каждый элемент здесь на своём месте — нет ни одной лишней детали, всё тщательно подобрано в соответствии с общей стилевой идеей.
Дизайн этой однокомнатной квартиры выдержан в духе минимализма. Четкие линии, лаконичные архитектурные формы и нейтральная цветовая палитра наполняют интерьер ощущением гармонии и уюта. Каждый элемент здесь на своём месте — нет ни одной лишней детали, всё тщательно подобрано в соответствии с общей стилевой идеей.
