

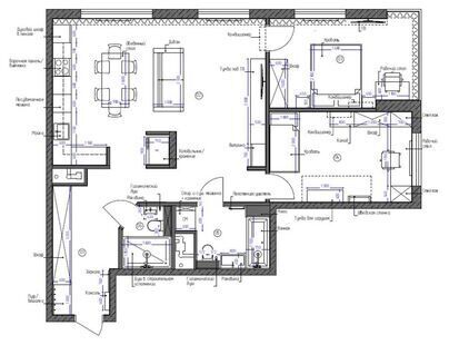
Изысканность, легкость и утонченная роскошь – ключевые черты стиля арт-деко в интерьере. Дизайн этой трехкомнатной квартиры воплощает эстетику арт-деко, сочетая строгую геометрию, благородные текстуры и эффектный декор. Нейтральная цветовая палитра гармонично дополняется эксклюзивными материалами, создавая атмосферу элегантности.
Изысканность, легкость и утонченная роскошь – ключевые черты стиля арт-деко в интерьере. Дизайн этой трехкомнатной квартиры воплощает эстетику арт-деко, сочетая строгую геометрию, благородные текстуры и эффектный декор. Нейтральная цветовая палитра гармонично дополняется эксклюзивными материалами, создавая атмосферу элегантности.
