

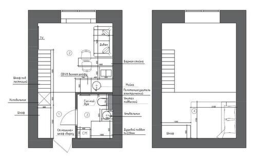
Дизайн-проект этой двухуровневой квартиры выполнен в скандинавском стиле. Несмотря на простоту и лаконичность сканди-стилистики, интерьер отличается необычайной изысканностью. В качестве основных цветов выбраны классические для скандинавского дизайна белый, серый и синий. Наличие натуральных материалов в отделке и оформлении создает в помещении особую атмосферу тепла и уюта.
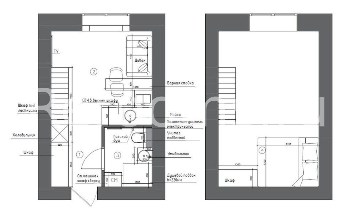
Дизайн-проект этой двухуровневой квартиры выполнен в скандинавском стиле. Несмотря на простоту и лаконичность сканди-стилистики, интерьер отличается необычайной изысканностью. В качестве основных цветов выбраны классические для скандинавского дизайна белый, серый и синий. Наличие натуральных материалов в отделке и оформлении создает в помещении особую атмосферу тепла и уюта.
