

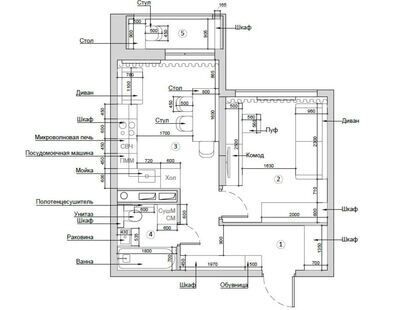
Дизайн-проект этой однокомнатной квартиры выполнен в скандинавском стиле. Несмотря на простоту и лаконичность сканди-стилистики, интерьер отличается необычайной изысканностью. В качестве основных цветов выбраны классические для скандинавского дизайна серый и древесный с использованием более ярких акцентов. Наличие натуральных материалов в отделке и оформлении создает в помещении особую атмосферу тепла и уюта.
Дизайн-проект этой однокомнатной квартиры выполнен в скандинавском стиле. Несмотря на простоту и лаконичность сканди-стилистики, интерьер отличается необычайной изысканностью. В качестве основных цветов выбраны классические для скандинавского дизайна серый и древесный с использованием более ярких акцентов. Наличие натуральных материалов в отделке и оформлении создает в помещении особую атмосферу тепла и уюта.
