
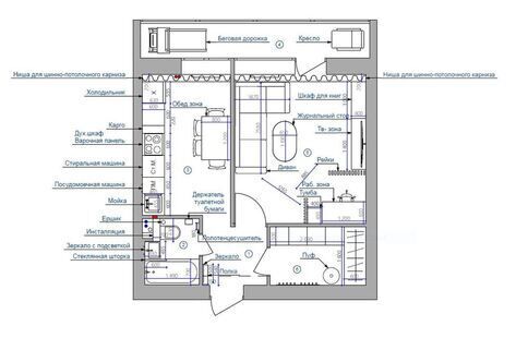
Проект этой однокомнатной квартиры выполнен в скандинавском стиле. Дизайн отличается лаконичностью и изысканным видом. В интерьере преобладают характерные для сканди стилистики тона - белый, серый и мятный. Наличие натуральных материалов и древесных текстур в отделке и оформлении создает в помещении особую атмосферу тепла и уюта.
Проект этой однокомнатной квартиры выполнен в скандинавском стиле. Дизайн отличается лаконичностью и изысканным видом. В интерьере преобладают характерные для сканди стилистики тона - белый, серый и мятный. Наличие натуральных материалов и древесных текстур в отделке и оформлении создает в помещении особую атмосферу тепла и уюта.
