

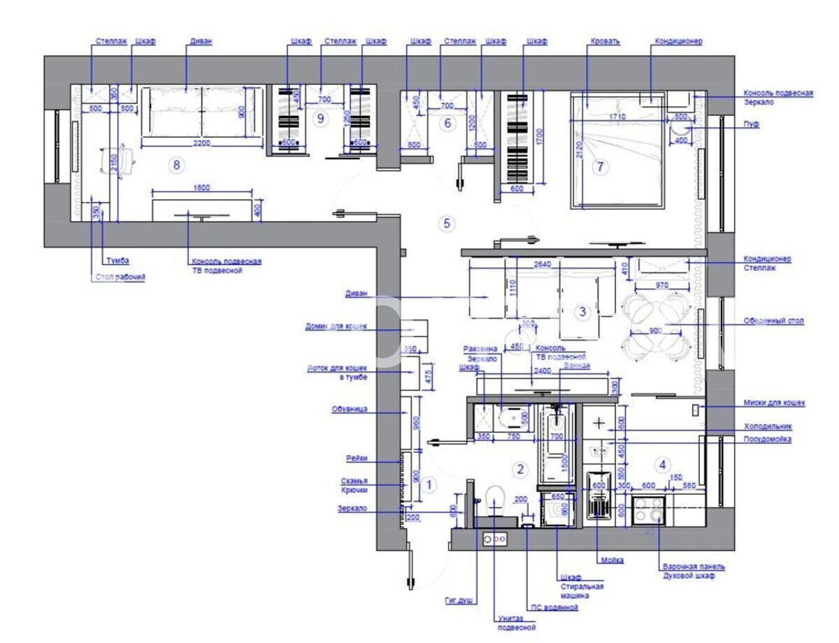
Дизайн этой квартиры выдержан в современном стиле. Цветовая гамма с использованием ярких глубоких оттенков придала интерьеру ультрамодный и гармоничный вид. Дизайнер умело скомбинировала различные материалы и продумала оригинальный световой сценарий для каждого помещения.
Дизайн этой квартиры выдержан в современном стиле. Цветовая гамма с использованием ярких глубоких оттенков придала интерьеру ультрамодный и гармоничный вид. Дизайнер умело скомбинировала различные материалы и продумала оригинальный световой сценарий для каждого помещения.
