

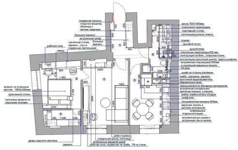
Интерьер в стиле модернизм всегда выглядит современно и актуально. Смелые дизайнерские решения, контрастная цветовая палитра и удобная эргономичная мебель создают гармоничное пространство, которое полностью отражает идею современного стиля.
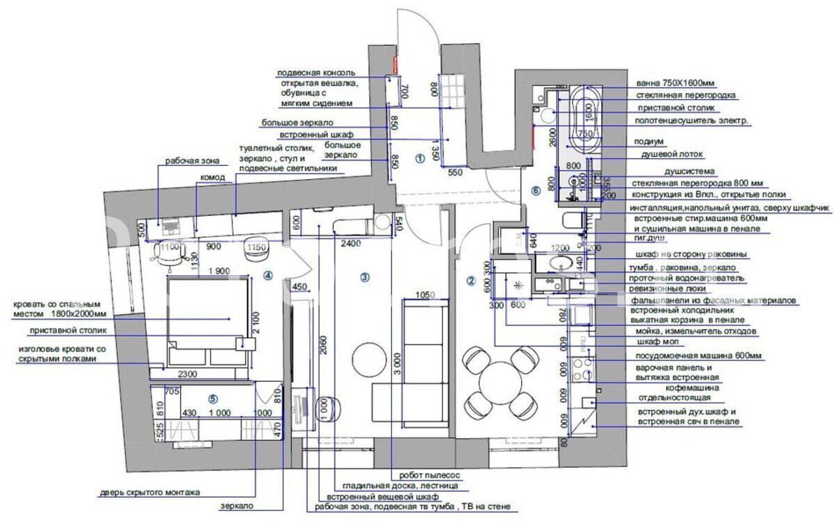
Интерьер в стиле модернизм всегда выглядит современно и актуально. Смелые дизайнерские решения, контрастная цветовая палитра и удобная эргономичная мебель создают гармоничное пространство, которое полностью отражает идею современного стиля.
