

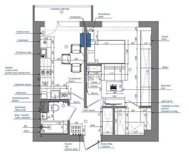
Интерьер этой небольшой однокомнатной квартиры оформлен в скандинавском стиле, где простота и лаконичность сочетаются с элегантностью. Светлая цветовая гамма с контрастными акцентами и древесные фактуры придают пространству тепло, а натуральные материалы в отделке создают уютную и располагающую атмосферу.
Интерьер этой небольшой однокомнатной квартиры оформлен в скандинавском стиле, где простота и лаконичность сочетаются с элегантностью. Светлая цветовая гамма с контрастными акцентами и древесные фактуры придают пространству тепло, а натуральные материалы в отделке создают уютную и располагающую атмосферу.
