

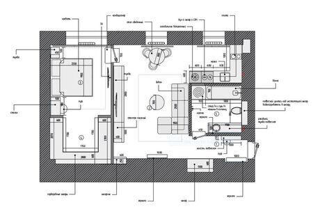
Дизайн этой двухкомнатной квартиры оформлен в стиле современной классики, где органично сочетаются эстетика, комфорт и практичность. Интерьер отличается лаконичным и элегантным видом, а каждое пространство тщательно продумано и объединено общей концепцией. Архитектурные элементы и изысканное оформление придают интерьеру выразительность и тонкое обаяние.
Дизайн этой двухкомнатной квартиры оформлен в стиле современной классики, где органично сочетаются эстетика, комфорт и практичность. Интерьер отличается лаконичным и элегантным видом, а каждое пространство тщательно продумано и объединено общей концепцией. Архитектурные элементы и изысканное оформление придают интерьеру выразительность и тонкое обаяние.
