
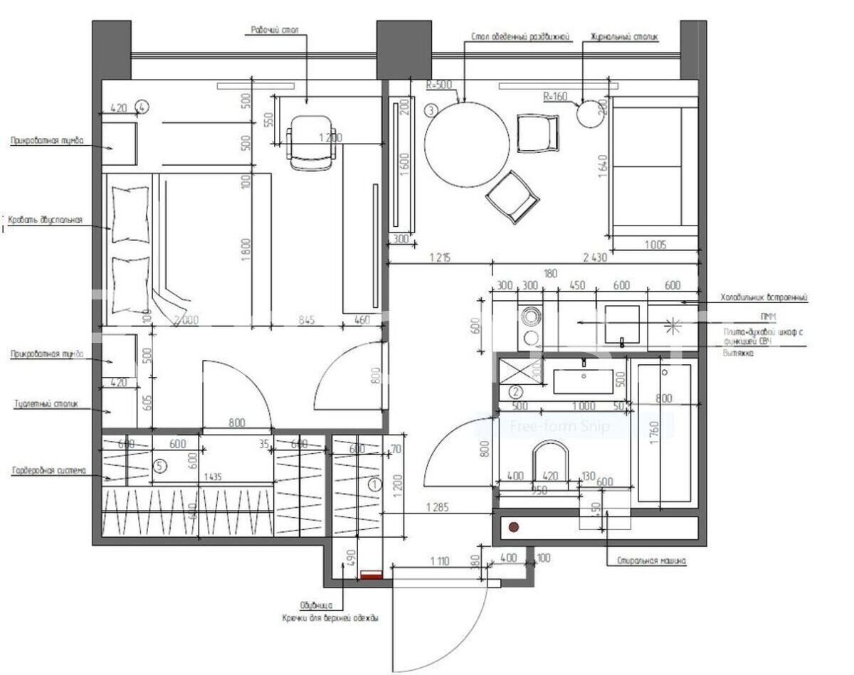
Интерьер, оформленный в стиле модернизм, отличается особой утонченностью и актуальным современным видом. Интересные дизайнерские находки, микс материалов и текстур, изысканная цветовая гамма, удобная эргономичная мебель - в этой квартире все работает на поддержание современной стилистической концепции.
Интерьер, оформленный в стиле модернизм, отличается особой утонченностью и актуальным современным видом. Интересные дизайнерские находки, микс материалов и текстур, изысканная цветовая гамма, удобная эргономичная мебель - в этой квартире все работает на поддержание современной стилистической концепции.
