

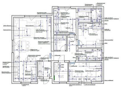
Дизайн-проект дома выдержан в стиле модернизм. Оригинальные архитектурные формы, разнообразие текстур и нестандартные дизайнерские решения создают гармоничное и цельное пространство. Многослойное освещение подчеркивает его характер, а сбалансированная цветовая палитра придает интерьеру стиль и уникальность.
Дизайн-проект дома выдержан в стиле модернизм. Оригинальные архитектурные формы, разнообразие текстур и нестандартные дизайнерские решения создают гармоничное и цельное пространство. Многослойное освещение подчеркивает его характер, а сбалансированная цветовая палитра придает интерьеру стиль и уникальность.
