

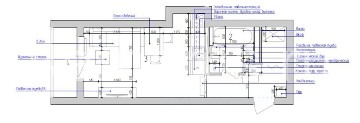
Дизайн-проект этой квартиры-студии выполнен в современном стиле. Разнообразные текстуры, современная минималистичная мебель, сдержанная цветовая гамма, ультрамодные светильники, подобранные для интерьера - все это выглядит необычайно гармонично и целостно.
Дизайн-проект этой квартиры-студии выполнен в современном стиле. Разнообразные текстуры, современная минималистичная мебель, сдержанная цветовая гамма, ультрамодные светильники, подобранные для интерьера - все это выглядит необычайно гармонично и целостно.
