

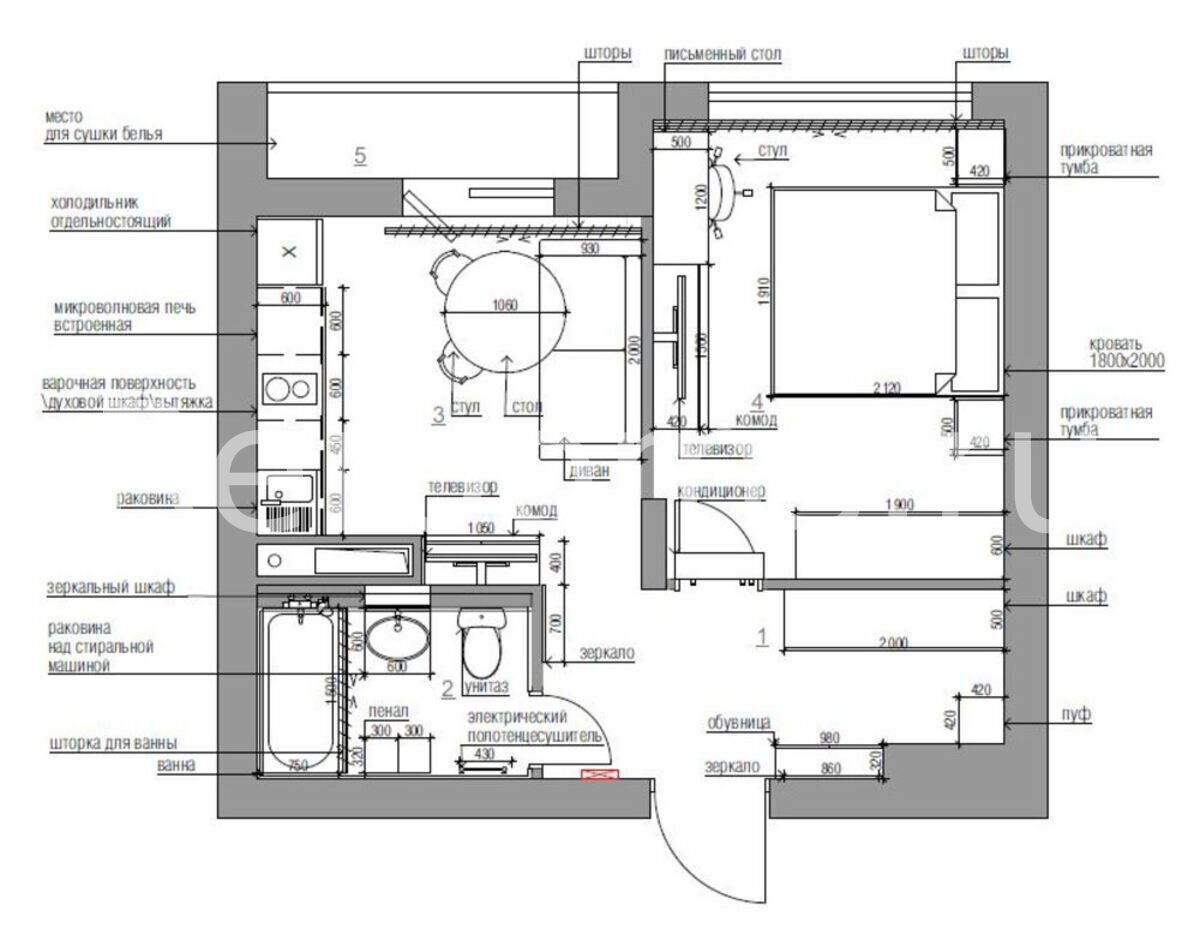
Проект демонстрирует ключевые особенности стиля контемпорари — лаконичные линии, практичный подход, сбалансированную цветовую гамму и богатство текстур. Пространство наполнено светом и воздухом, а тщательно продуманная композиция создаёт атмосферу уюта, элегантности и современности.
Проект демонстрирует ключевые особенности стиля контемпорари — лаконичные линии, практичный подход, сбалансированную цветовую гамму и богатство текстур. Пространство наполнено светом и воздухом, а тщательно продуманная композиция создаёт атмосферу уюта, элегантности и современности.
