

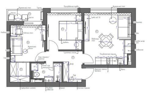
Интерьер этой квартиры оформлен в современном стиле. Сдержанная цветовая гамма в бежевых тонах придает пространству стильный и актуальный вид. Уникальная архитектура, сочетание разнообразных материалов и продуманное освещение создают эффектное и современное пространство.
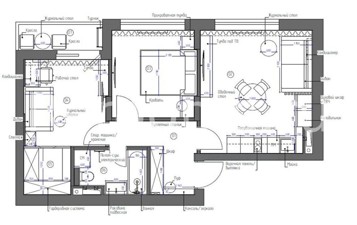
Интерьер этой квартиры оформлен в современном стиле. Сдержанная цветовая гамма в бежевых тонах придает пространству стильный и актуальный вид. Уникальная архитектура, сочетание разнообразных материалов и продуманное освещение создают эффектное и современное пространство.
